EasyManua.ls Logo

Viper AS5160 - Diagrama de Cableado

Viper AS5160
84 pages
Print Icon
To Next Page IconTo Next Page
To Next Page IconTo Next Page
To Previous Page IconTo Previous Page
To Previous Page IconTo Previous Page
Loading...
INSTRUCCIONES DE USO
ESPOL
63
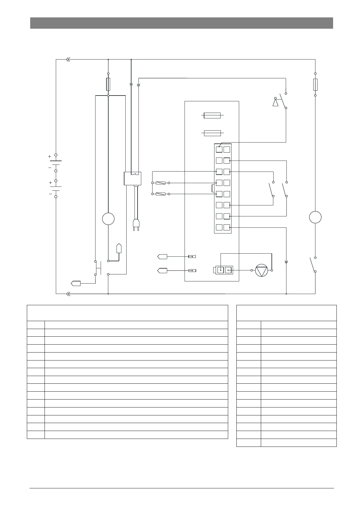
DIAGRAMA DE CABLEADO (SOLO PARAQUINA DE DISCOS SIN TRACCIÓN)
COMPONENTES
INDICADOR
BAT
BATERÍAS DE 24V
RD1
ROJO/6AWG
CH
CARGADOR DE BATERÍA
RD2
ROJO/10AWG
EB1
TABLERO DEL PANEL DE CONTROL
RD3
ROJO/16AWG
ES1
INTERRUPTOR ELECTROMAGNÉTICO DE 24V (MOTOR DEL CEPILLO)
RD4
ROJO/20AWG
ES2
RELÉ DE 24V (MOTOR DE ASPIRACIÓN)
BK1
NEGRO/6AWG
F1
FUSIBLE DE CIRCUITO DE BAJA TENSN
BK2
NEGRO/10AWG
F2
DISYUNTOR (MOTOR DEL CEPILLO)
BK3
NEGRO/12AWG
F3
FUSIBLE DE LIBERACN DEL CEPILLO
BK5
NEGRO/20AWG
F5
DISYUNTOR (MOTOR DE ASPIRACIÓN)
RD-BK
ROJO-NEGRO/20AWG
K1
INTERRUPTOR CON LLAVE
BN1
MARRÓN/12AWG
M1
MOTOR DEL CEPILLO
BN3
MARRÓN/20AWG
M2
MOTOR DE ASPIRACIÓN
BN-BK
MARRÓN-NEGRO/20AWG
EV
LVULA ELECTROMAGNÉTICA
BU
AZUL/20AWG
SW1
INTERRUPTOR DE SEGURIDAD (CEPILLO/TRACCIÓN)
BU-BK
AZUL-NEGRO/20AWG
SW2
INTERRUPTOR DE SEGURIDAD (CEPILLO/TRACCIÓN)
YE
AMARILLO/20AWG
WH
BLANCO/20AWG
BAT
CH
K1
EV
M1
M2
EB1
ES1
ES2
F2
F5
RD1
RD2
RD2
BN1
BK3
BN3
RD2
BK3
BK2
BK5
BK2
BK1
NC
F1
F3
SW1
RD4
RD-BK
BK2
RD2
BN3
J1
J2
SW2
IN1
8
9
1
16
RD4
ES1
ES2
BN-BK
YE
BU-BK
BN3
BU
BN3
RD-BK
RD3
RD3
2
6
7
3
4
5
10
11
14
15
12
13
IN1
BU
RD3
IN2
J5
J4
IN2
RD3
BK5

Table of Contents

Other manuals for Viper AS5160

Related product manuals