EasyManua.ls Logo

Vollmer MAP 200 - Foundation Layout for MAP 200

Default Icon
50 pages
Print Icon
To Next Page IconTo Next Page
To Next Page IconTo Next Page
To Previous Page IconTo Previous Page
To Previous Page IconTo Previous Page
Loading...
VOLLMER WERKE
Operating instructions
Issue: 01
MAP 200 / 400
Page: 15-3
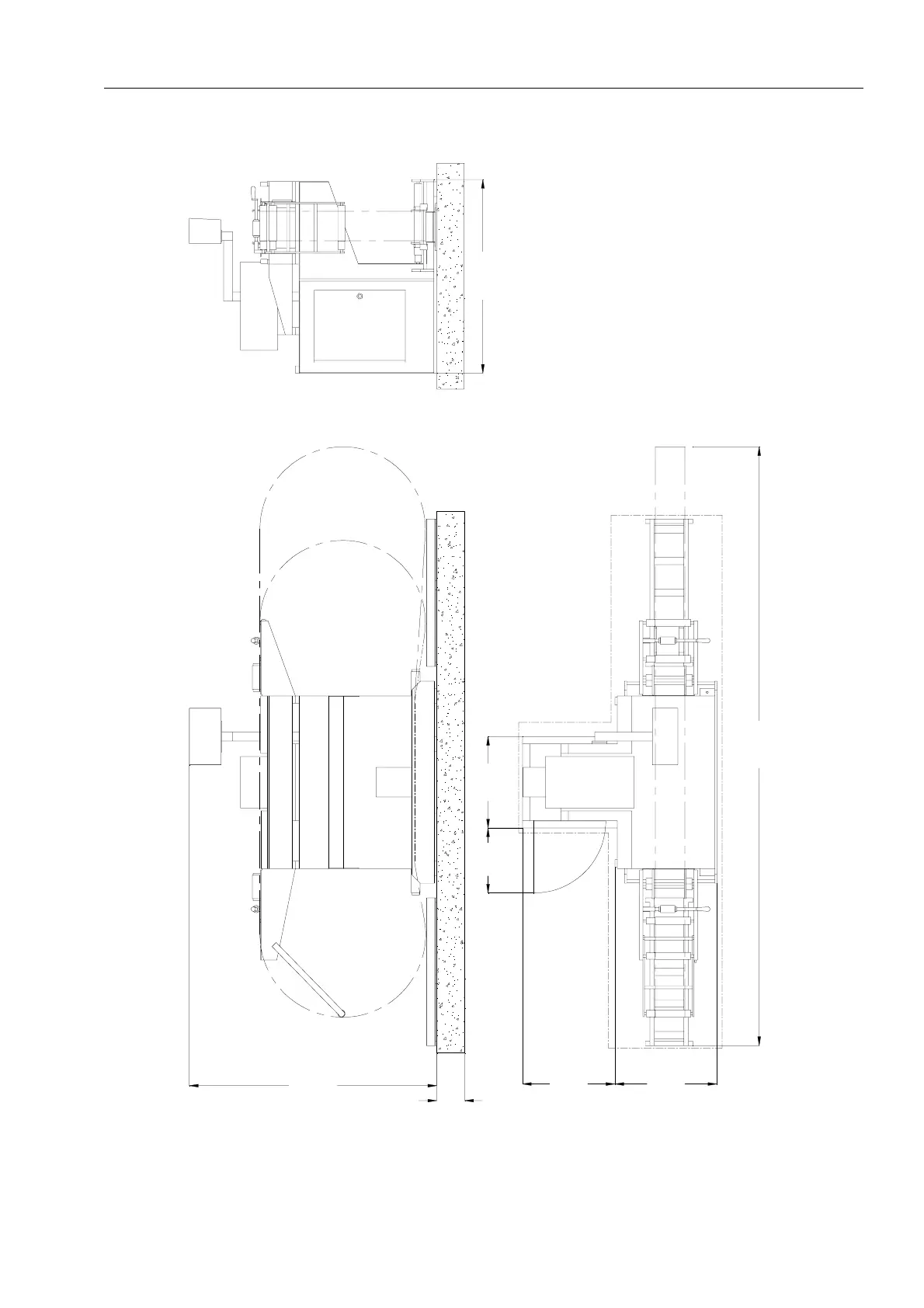
Foundation layout MAP 200
4060
440
1675
150
1315
620
625 690

Table of Contents