EasyManua.ls Logo

WinGD X35-B - Page 469

WinGD X35-B
486 pages
Print Icon
To Next Page IconTo Next Page
To Next Page IconTo Next Page
To Previous Page IconTo Previous Page
To Previous Page IconTo Previous Page
Loading...
A
B
C
D
E
F
G
H
1 2 3 4 5 6 7 8 9 10
1 2 3 4 5 6
A
B
C
D
Object
Pr
oduct
Pages
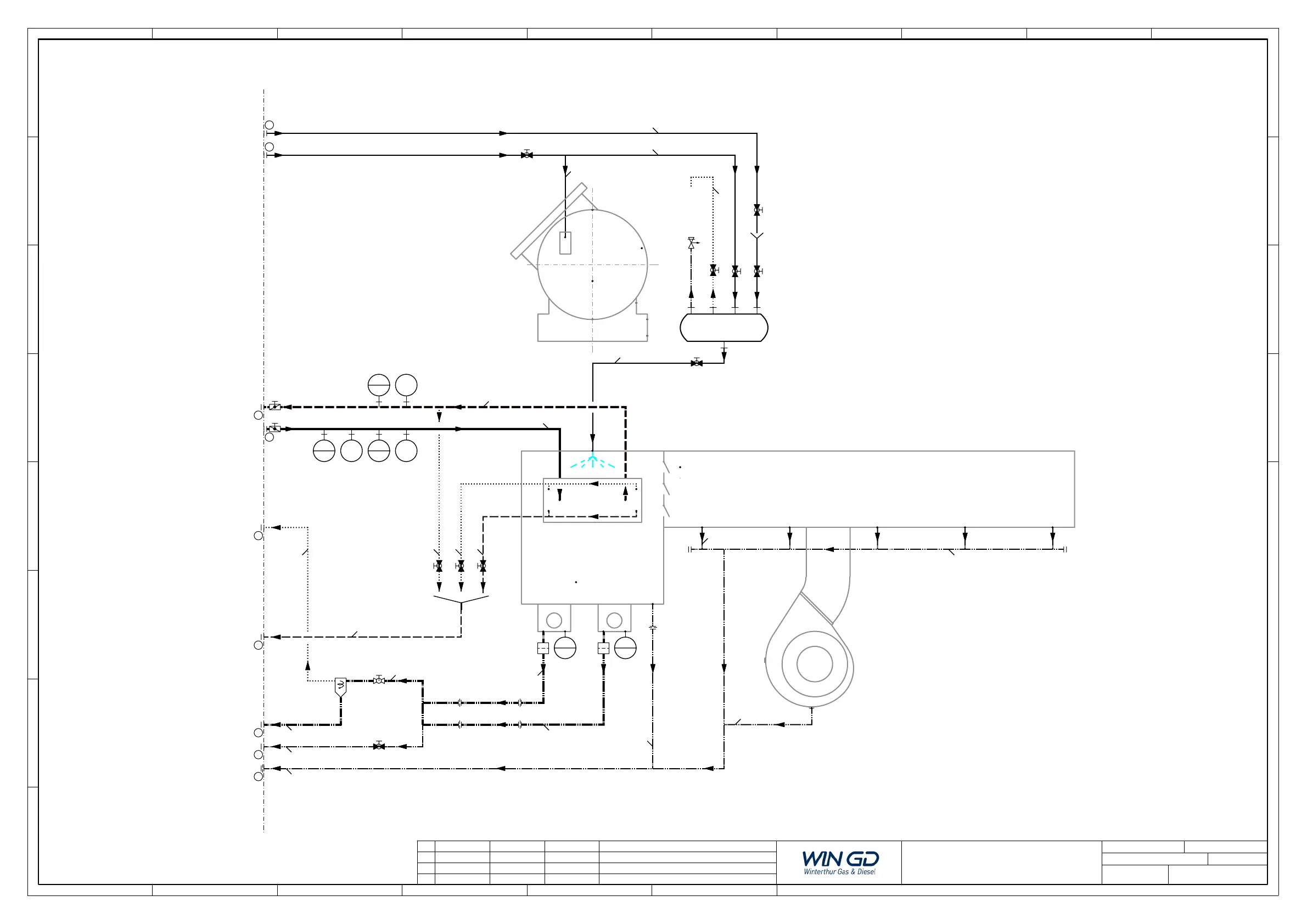
WATER SYSTEMS
PIPE DIAGRAM
Scavenge Air Receiver & TC
STD
3 / 10
W6X
35-B
8357-T1-1 / DN50
8357-T1-2 / DN50
8357-E0-4 / DN50
8352-E0-4 / DN15
8357-E0-3 / DN50
8347-T1-1 / DN20
8338-E0-2 / DN20
8314-T1-1 / DN15
8357-E0-2 / DN50
8338-E0-1 / DN20
8338-T1-1 / DN12
8352-T1-1 / DN25
8352-E0-3 / DN50
8352-E0-2 / DN50
8357-E0-1 / DN50
8335-T1-1 / DN150
8335-T1-2 / DN150
8347-E0-3 / DN20
8314-T1-3 / DN15
8314-E0-1 / DN32
8314-T1-2 / DN15
8352-E0-1 / DN25
Scavenge
Air Cooler
LS
4075A
LS
4071A
8314-T1.3
07
08
8357-T1.1
8357-T1.4
Aux
Blower
8357-E0.1
8357-E0.3
8347-E0.2
8347-E0.3
8347-T1.1
8338-E0.3
8338-E0.2
8314-T1.1
16
17
18
11
12
13
8335-T1.1
8335-T1.2
TE
1371A
PT
1361A
PI
1361L
TI
1371L
TE
1381A
TI
1381L
ø8
8357-T1.2
ø8
8357-T1.5
8357-E0.2
8352-T1.1
Turbocharger
8314-T1.2
p >
8347-E0.5
8347-E0.4
06
ø8
8357-T1.3
ø8
8357-T1.6
Washing
Plant SAC
PLANT
ENGINE

Table of Contents

Related product manuals