EasyManua.ls Logo

WinGD X35-B - Servo Oil System (Generic and Simplified)

WinGD X35-B
486 pages
Print Icon
To Next Page IconTo Next Page
To Next Page IconTo Next Page
To Previous Page IconTo Previous Page
To Previous Page IconTo Previous Page
Loading...
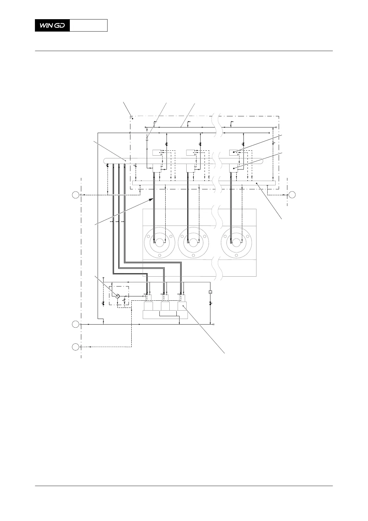
Fig 4-5 Servo oil system (generic and simplified)
Cyl. 1 Cyl. 2
38
25
34
Cyl. n
35
ENGINE
ENGINE
PLANT
PLANT
003
001
002
004
005
006
007
008 009 010
Legend
001 Injection control unit (ICU) for X82 and X92 006 Oil pipe to exhaust valve
002 Exhaust valve control unit (VCU) 007 Servo oil rail
003 Square collector pipe 008 Rail unit
004 Servo oil pump 009 Pressure reducing valve
005 Servo oil service pump 010 Distributor pipe (mini-rail)
X35-B
AA00-0000-00AAA-043Q-A
Operation Manual Servo oil system
Winterthur Gas & Diesel Ltd.
- 79 - Issue 001 2019-10

Table of Contents

Related product manuals