EasyManua.ls Logo

WinGD X35-B - Page 482

WinGD X35-B
486 pages
Print Icon
To Next Page IconTo Next Page
To Next Page IconTo Next Page
To Previous Page IconTo Previous Page
To Previous Page IconTo Previous Page
Loading...
A
B
C
D
E
F
G
H
1 2 3 4 5 6 7 8 9 10
1 2 3 4 5 6
A
B
C
D
Object
Pr
oduct
Pages
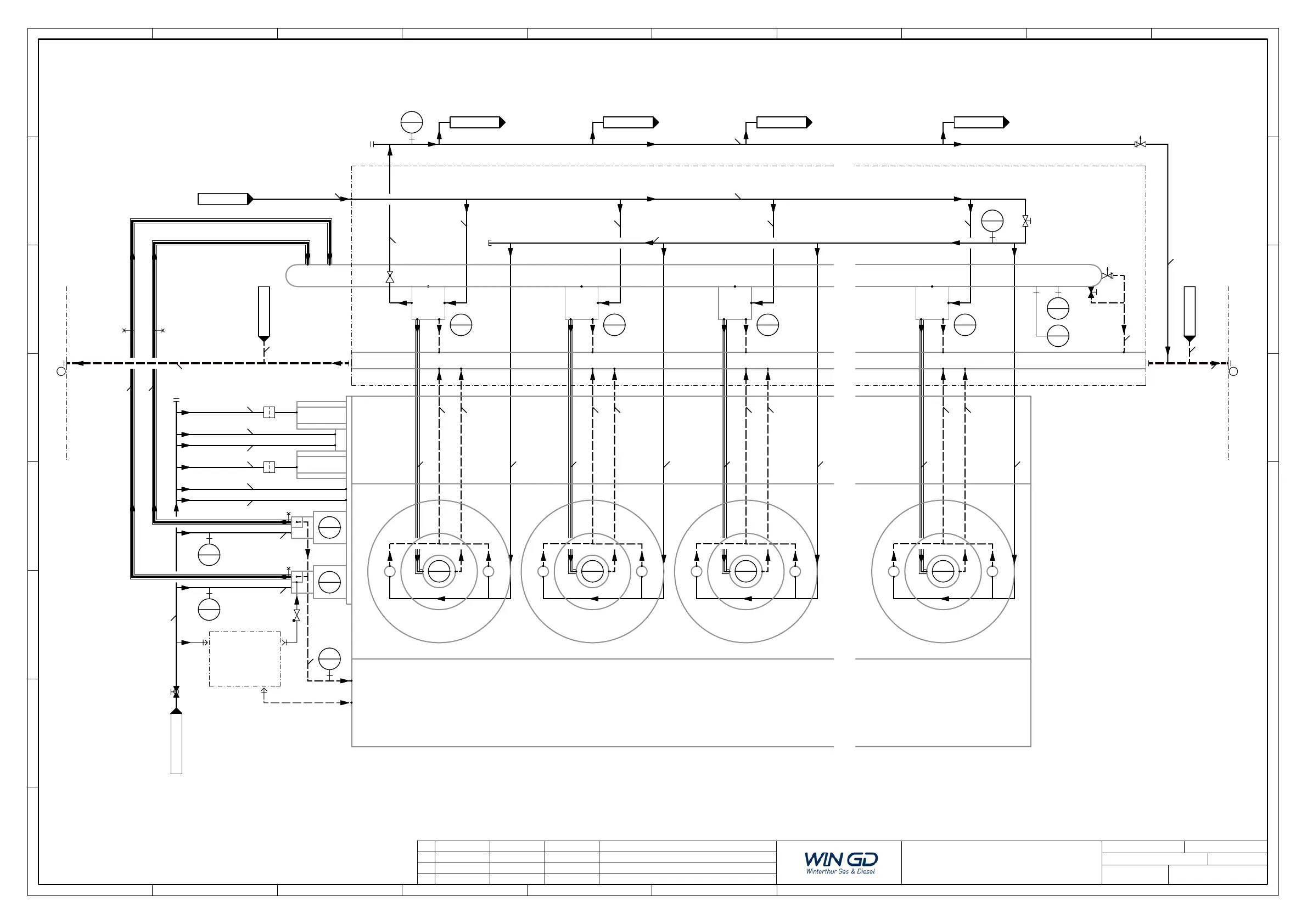
OIL SYSTEMS
PIPE DIAGRAM
Servo Oil & Supply Unit Pipings
STD
6 / 10
W5X35-B
8480-C1-1 / DN20
2723-C1-3 / DN9
8
4
6
0
-
C
1
-
1
5560-C1-1 / DN7
DOC.004
(004.4-E)-E0-7
8423-E0-7 / DN50
8423-E0-8 / DN20
8423-E0-13 / DN9
8423-E0-12 / DN9
8423-E0-15 / DN20
8423-E0-14 / DN20
8423-E0-11 / DN15
8423-E0-10 / DN20
8423-E0-9 / DN20
8447-E0-1
8447-E0-2
2
7
2
3
-
C
1
-
4
/
D
N
9
8430-E0-1 / DN20
DOC.004
(004.4-C)-E0-1
8460-C2-1
8460-C3-1
8460-C5-1
5560-C2-1 / DN7
2723-C2-3 / DN9
5560-C3-1 / DN7
2723-C3-3 / DN9
5560-C5-1 / DN7
2723-C5-3 / DN9
5560-E0-2 / DN20
8480-C2-1 / DN20
8480-C5-1 / DN20
8480-C3-1 / DN20
2723-C2-4 / DN9
2723-C3-4 / DN9
2723-C5-4 / DN9
8452-E0-1 / DN15
5610-E0-1 / DN12
DAAD076355
(007.2-D)-C1_1
DAAD076355
(007.3-D)-C2_1
DAAD076355
(007.5-D)-C3_1
DAAD076355
(007.6-D)-C5_1
5614-E0-2 / ø43
5614-E0-1 / DN12
8483-E0-1 / DN65
5560-E0-1 / DN20
8482-E0-1 / DN65
DAAD076355
(007.3-F)-E0-4
DOC.006
( 00/001.2-D)-E0-4
5614-E0-3 / DN12
8447-E0.78447-E0.6
8447-E0.2
VCU
8447-E0.3
8447-E0.4
5
6
1
0
-
E
0
.
4
FS
2062A
FS
2061A
CV
7222C
CV
7221C
ZT
5421C
34
LS
2055A
CV
7401C
5614-E0.1
PT
2041A
8423-E0.6
Square Collector Pipe
Servo Oil Rail
DG 5560
Rail Unit
8423-E0.5
8423-E0.4
8423-E0.3
8423-E0.7
8447-E0.1
ZT
5422C
ZT
5423C
VCU VCU VCU
CV
7402C
CV
7403C
PT
2003A
PT
2071C
PT
2072C
N03
N04
p >
5610-E0.3
5560-E0.2
35
p >
5614-E0.6
CV
7405C
ZT
5425C
DG 5612
PLANT
ENGINE
8423-E0-7 Pages 4, 5
Connections to
servicepump
see group
9484-11
8430-E0-1 Page 4
DG 5612 DG 5612 DG 5612
5614-C1_1 Page 7 5614-C2_1 Page 7 5614-C3_1 Page 7 5614-C5_1 Page 7
ENGINE
PLANT
8475-E0-4 Page 7
8475-E0-4 Page 7
DN20 DN20

Table of Contents

Related product manuals