EasyManua.ls Logo

Wolf 2 Series - Page 14

Wolf 2 Series
62 pages
Print Icon
To Next Page IconTo Next Page
To Next Page IconTo Next Page
To Previous Page IconTo Previous Page
To Previous Page IconTo Previous Page
Loading...
Electric Cooktop -2
Installation Information
2-6
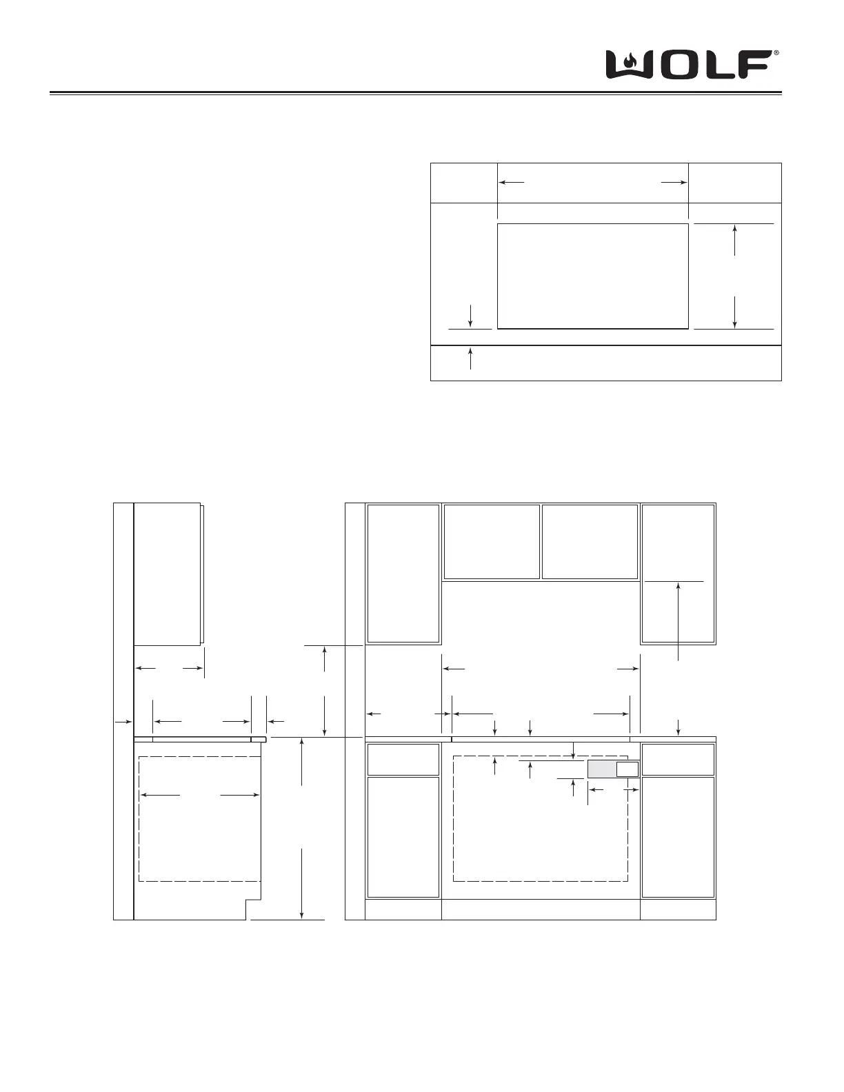
Counter top Cut-out Dimensions (CT36E )
NOTE: For complete installation information, please refer to
the Installation Guide provided with the unit.
The CT36E is designed to t a 39” (991mm) width base
cabinet with a 25” (635mm) deep counter top. Before
making the counter top cut-out, verify that the cooktop
will clear the side walls of the base cabinet below. A Wolf
30” (762mm) or 36” (914mm) built-in single oven may
be installed below Model CT36E. For this installation,
unless the cabinets are deeper than 24” (610mm), it is
recommended that the electrical supply be placed in the
base cabinet to the right of the oven. (See Figure 2-7 &
2-8)
NOTE: Locate the junction box within reach of the 48”
(1219 mm) conduit, and accessible when the cooktop unit
is installed.
NOTE: Do not block the cooling fan located at the bottom
of the cooktop. Minimum 5 3/4” (146mm) clearance is
required between countertop and any combustible surface
directly below the cooktop.
(64)
WIDTH
COOKTOP CUT-OUT
COOKTOP
DEPTH
CUT-OUT
19-1/4” (489)
2-1/2” MIN
FRONT OF COUNTERTOP
34-3/8” (873)
Figure 2-7 CT36E Counter top Cut-Out Top View
Figure 2-8 CT36E Counter top Cut-Out
*Minimum clearance from both side edges of cooktop cut-out to combustible materials up to 18” (457mm) above counter
top.
**Minimum clearance from rear edge of cooktop cut-out to combustible materials up to 18” (457mm) above counter top.
NOTE: Unit dimensions may vary to ±1/8” (3mm).
2"* min (51)
18"
(457)
(64)
13" max
(330)
30" (762)
24" min
(610)
3
3
/ 4 " min
2"**
(51)
10"
(254)
3
1
/ 2 " (89)
E
39" (991)
RECOMMENDED
CABINET WIDTH
36" min (914)
COUNTERTOP TO
COMBUSTIBLE
MATERIALS
ABOVE COOKTOP
CUT-OUT TO
COMBUSTIBLE
MATERIALS
BOTH SIDES
19-1/4” (489)
COOKTOP
CUT-OUT
DEPTH
2-1/2” min
36" (914)
FLOOR TO
HEIGHT
STANDARD
COUNTER
36” OVEN OPENING
34-3/8” (873) COOKTOP
CUT-OUT WIDTH
4” (114)
(95)
NOTE: Installations of International units require taking
the extra space required for the Terminal Box into
consideration.

Other manuals for Wolf 2 Series

Related product manuals