EasyManua.ls Logo

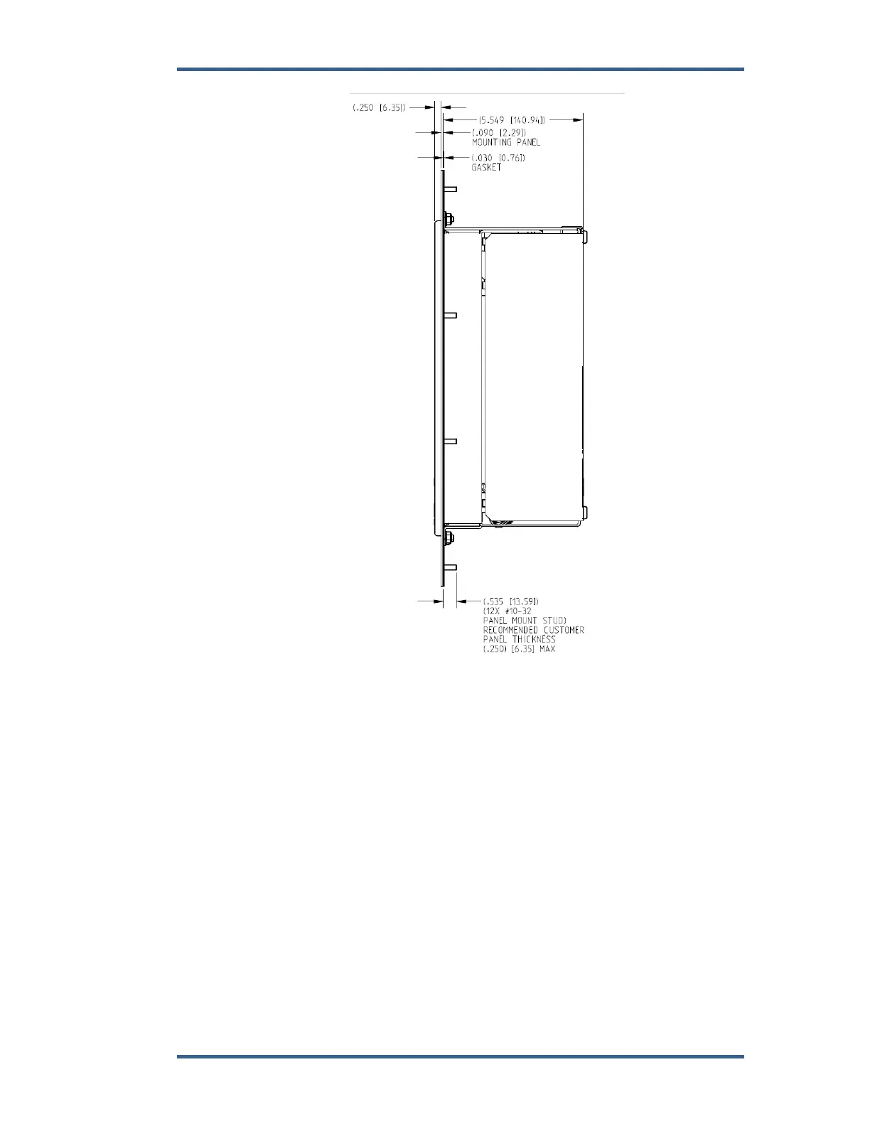
Woodward ProTech TPS - Figure 2-5 B. Mounting Outline Diagram for Panel-Mount Models

Woodward ProTech TPS
125 pages
Print Icon
To Next Page IconTo Next Page
To Next Page IconTo Next Page
To Previous Page IconTo Previous Page
To Previous Page IconTo Previous Page
Loading...
Manual 26710V1 ProTechTPS Total Protection System
Woodward 25
Figure 2-5b. Mounting Outline Diagram for Panel-Mount Models

Table of Contents

Related product manuals