EasyManua.ls Logo

ABB ACS800-37-0170-3 - Frame Size 4×R8 I

ABB ACS800-37-0170-3
228 pages
To Next Page IconTo Next Page
To Next Page IconTo Next Page
To Previous Page IconTo Previous Page
To Previous Page IconTo Previous Page
Loading...
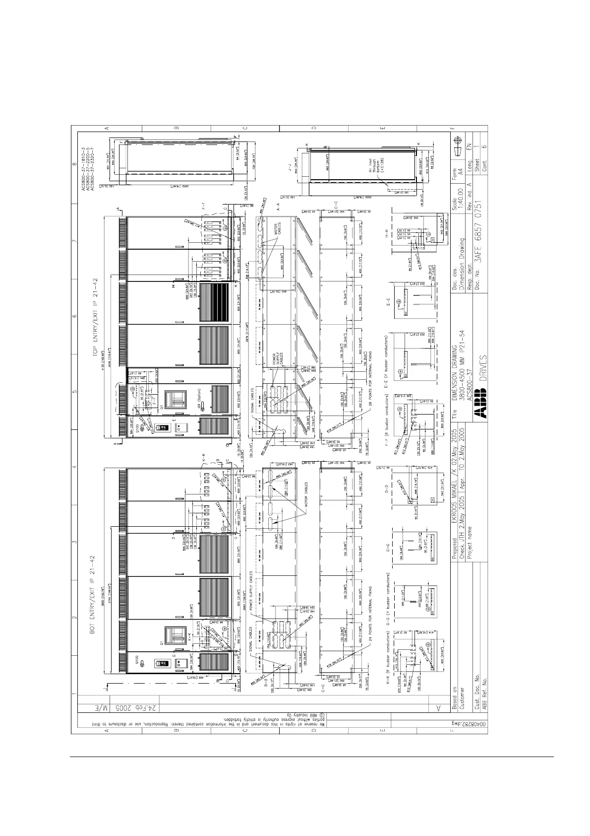
Dimensions
189
Frame size 4×R8i

Table of Contents

Related product manuals