EasyManua.ls Logo

ABB REF615 G - Page 449

ABB REF615 G
896 pages
Print Icon
To Next Page IconTo Next Page
To Next Page IconTo Next Page
To Previous Page IconTo Previous Page
To Previous Page IconTo Previous Page
Loading...
Example 2a
n
n
m
u
s
GUID-787D9DE6-961E-454A-B97A-FAFC6F9701F0 V1 EN
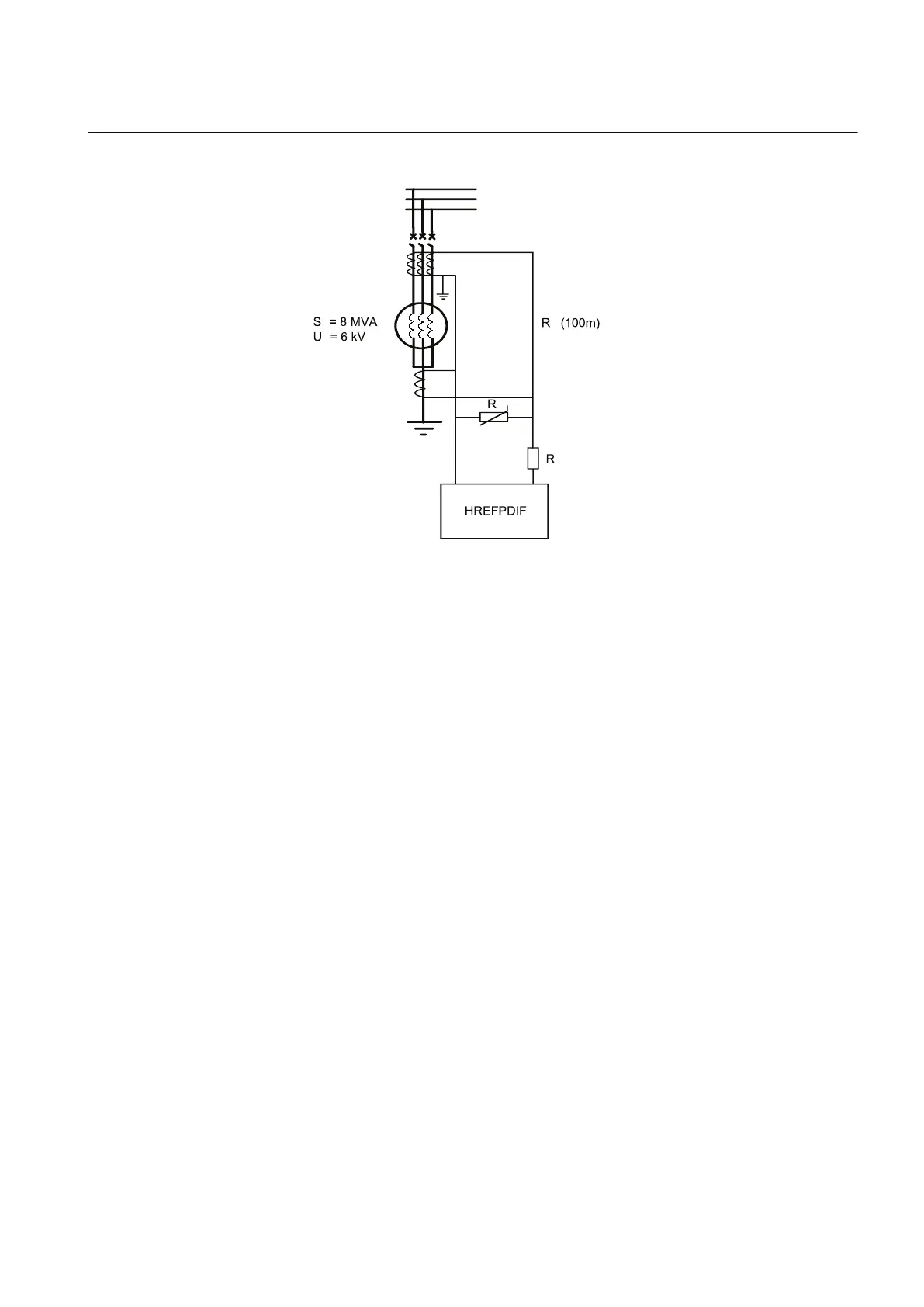
Figure 237: Restricted earth-fault protection of a generator
In the protected generator:
S
n
= 8 MVA
U
n
= 6 kV.
I
n
= 770 A
I
kmax
= 6 · I
n
= 6 · 770 A = 4620 A
In this example, the CT type is KOFD 12 A 21 with:
I
CT_1n
= 1000 A (value given by the manufacturer).
I
CT_2n
= 1 A (value given by the manufacturer).
U
k
= 323 V (value given by the manufacturer).
R
in
= 15.3 Ω (value given by the manufacturer).
I
e
= 0.012 A (value given by the manufacturer).
If the length of the secondary circuit is 100 m (the whole loop is 200 m) and the
area of the cross section is 2.5 mm
2
:
R
m
= 7.28 Ω/km · 2 · 0.1 km ≈ 1.46 Ω
1YHT530004D05 D Section 4
Protection functions
615 series 443
Technical Manual

Table of Contents

Related product manuals