EasyManua.ls Logo

ABB REF615 G - Page 591

ABB REF615 G
896 pages
Print Icon
To Next Page IconTo Next Page
To Next Page IconTo Next Page
To Previous Page IconTo Previous Page
To Previous Page IconTo Previous Page
Loading...
GUID-8DC3B17A-13FE-4E38-85C6-A228BC03206B V1 EN
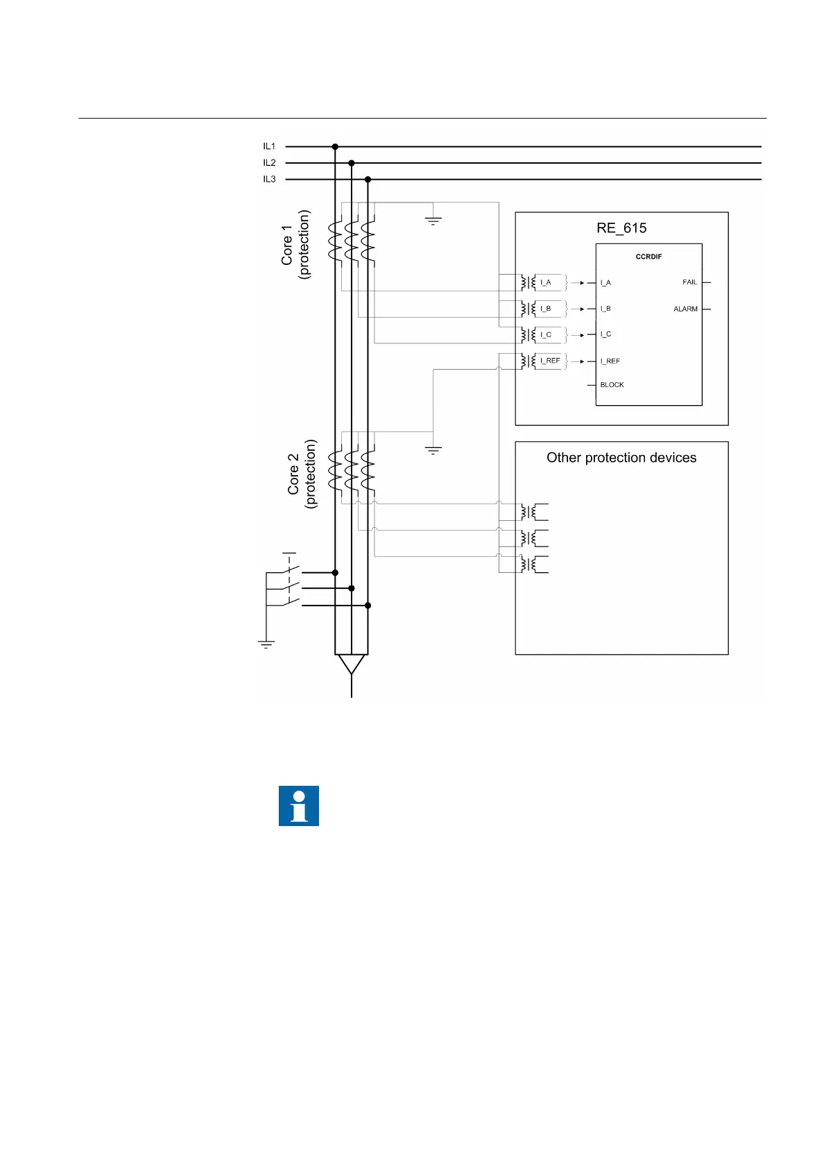
Figure 316: Connection diagram for current circuit supervision with two sets of
three-phase current transformer protection cores
When using the measurement core for reference current
measurement, it should be noted that the saturation level of the
measurement core is much lower than with the protection core. This
should be taken into account when setting the current circuit
supervision function.
1YHT530004D05 D Section 6
Supervision functions
615 series 585
Technical Manual

Table of Contents

Related product manuals