EasyManua.ls Logo

ABB relion REF615 - Page 51

ABB relion REF615
404 pages
Print Icon
To Next Page IconTo Next Page
To Next Page IconTo Next Page
To Previous Page IconTo Previous Page
To Previous Page IconTo Previous Page
Loading...
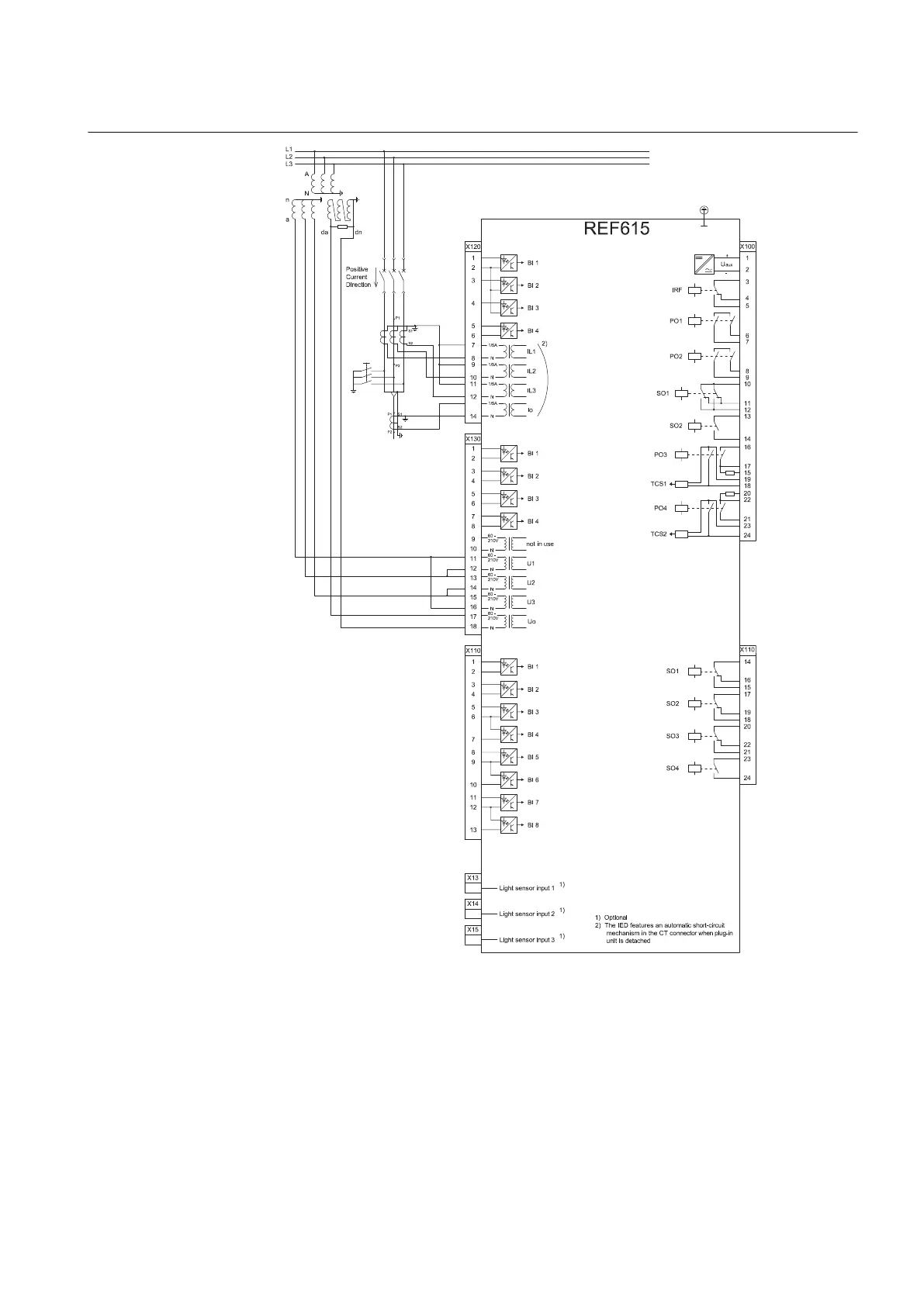
GUID-F7601942-ACF2-47E2-8F21-CD9C1D2BC1F0 V4 EN
Figure 13: Connection diagram for the E and F configurations
1MRS756378 S Section 3
REF615 standard configurations
REF615 45
Application Manual

Table of Contents

Related product manuals