EasyManua.ls Logo

Airo XP Series - Adjusting the Telescopic Rails for Dual Models

Airo XP Series
78 pages
Print Icon
To Next Page IconTo Next Page
To Next Page IconTo Next Page
To Previous Page IconTo Previous Page
To Previous Page IconTo Previous Page
Loading...
Use and Maintenance Manual - XP - XLP Series
Page 29
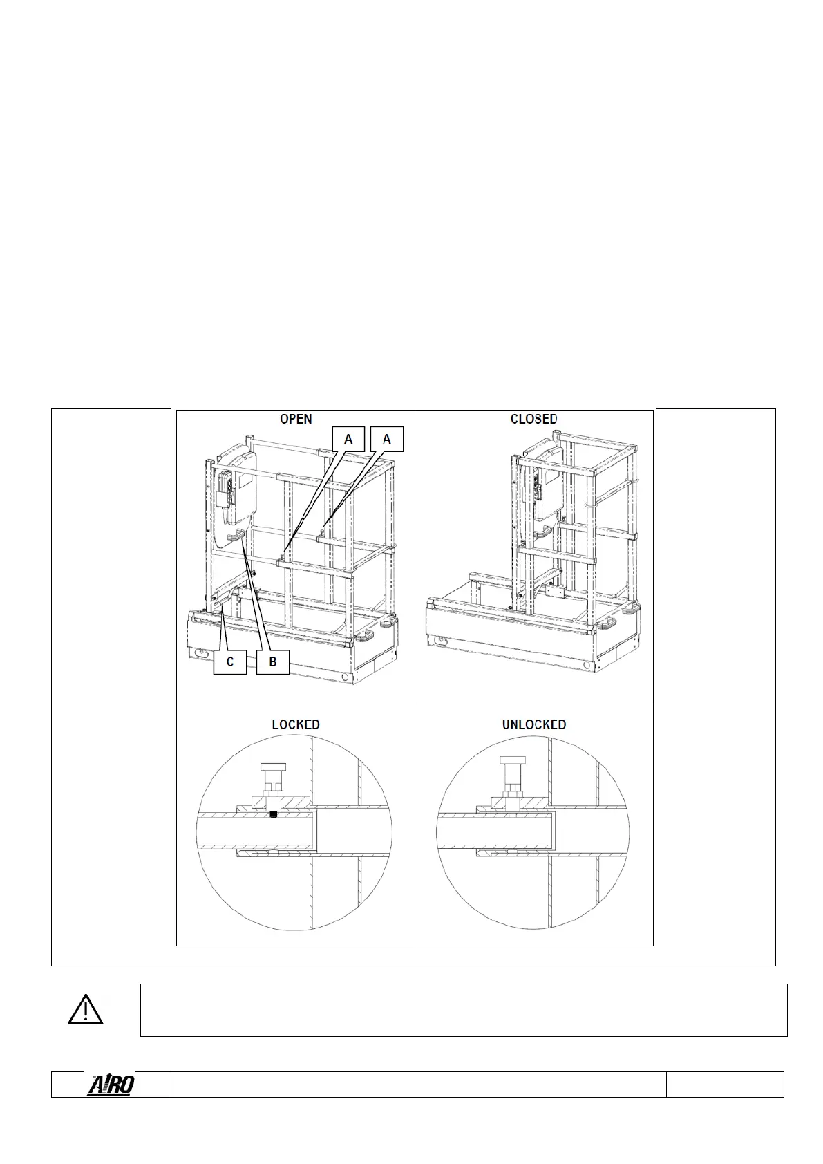
5.4 Adjusting the telescopic rails for DUAL models
The DUAL models are equipped with adjustable rails of the telescopic type so as to obtain two useful dimensions of the platform:
- All open (OPEN): normal size of the platform for the general use of the machine;
- All closed (CLOSED): to reduce the useful perimeter of the work platform to allow the operator to work in confined spaces in
height as, for example, between the panels of false ceilings.
To adjust the railings in order to obtain the minimum dimensions of the work platform:
- Raise and rotate by 90° both red safety pins (A) as shown in the figure aside (UNLOCKED);
- Pull the front rail toward you using handle (B) and pedal (C) shown in the figure aside;
- Raise and rotate by 90° both red safety pins (A) and make sure that the pins have engaged with the safety holes of the rail
(see figure aside: LOCKED) by locking the rails.
To adjust the rails in order to obtain the minimum dimensions of the work platform:
- Raise and rotate by 90° both red safety pins (A) as shown in the figure aside (UNLOCKED);
- Push the front rail forward using handle (B) and pedal (C) shown in the figure aside;
- Raise and rotate by 90° both red safety pins (A) and make sure that the pins have engaged with the safety holes of the rail
(see figure aside: LOCKED) by locking the rails.
FIG.13
Always make sure that the telescopic rails are located in one of the two extreme positions (completely
open or completely closed) and that both red safety pins have engaged with the safety holes of the rail
(LOCK).

Table of Contents