EasyManua.ls Logo

Allen-Bradley 1336 FORCE - Standard Adapter Board; Standard Adapter Board Connections

Allen-Bradley 1336 FORCE
324 pages
To Next Page IconTo Next Page
To Next Page IconTo Next Page
To Previous Page IconTo Previous Page
To Previous Page IconTo Previous Page
Loading...
Chapter 2
Installation/Wiring
2–28
Standard Adapter Board When installing and wiring the Standard Adapter board, you need to deal
with the following issues:
Control and Signal Wiring
Interface Board Installation and Removal
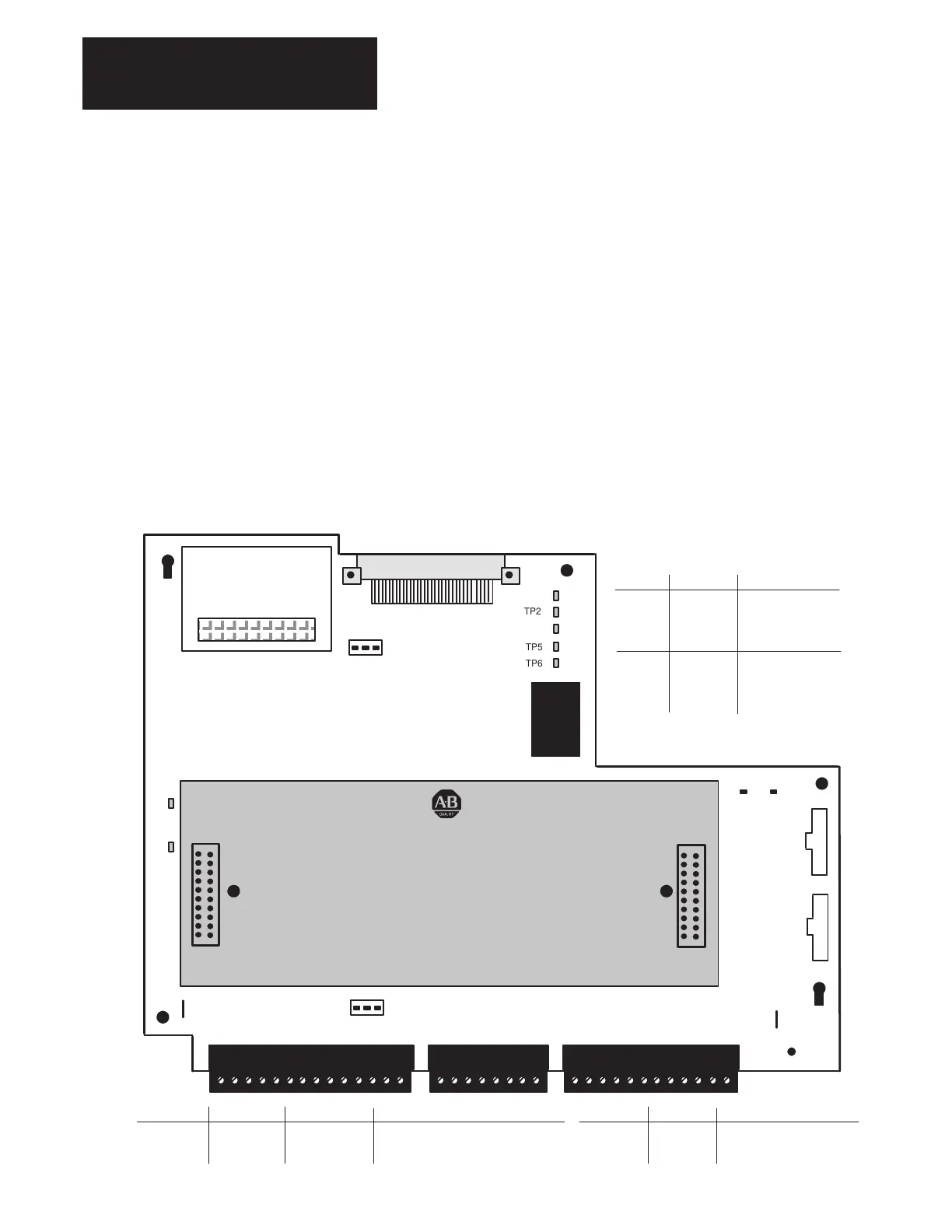
Control & Signal Wiring – If your 1336 FORCE Drive is equipped with
a Standard Adapter Board, terminal blocks TB5, TB6 and TB7 located at
the bottom center of the board (Figure 2.15) are used for control and signal
wiring (Drive Permissives). The Standard Adapter Board is connected to
the Main Control Board through J1, the Main Control Interface.
The maximum and minimum wire size accepted by TB5, TB6 and TB7 is
3.3 and 0.06 mm
2
(12 and 30 AWG). Maximum torque for these terminal
blocks is 0.79 N–m (7 lb. – in.). Recommended control signal wire is:
Belden 8760 or equiv. – 0.750 mm
2
(18 AWG), Twisted Pair, Shielded
Belden 8770 or equiv. – 0.750 mm
2
(18 AWG), 3 – Conductor, Shielded
Belden 9460 or equiv. – 0.750 mm
2
(18 AWG), Twisted Pair, Shielded
Figure 2.15.
Standard Adapter Board Connections
LANGUAGE
MODULE
1
J11
TP1
Port 1
TB5
J9
D1
TE
Port 2
TP3
J1
Main Control
Interface
J5
BRAM
ÀÀÀÀÀÀ
ÀÀÀÀÀÀ
TP2
TP6
TP5
+5V
DGND
+15V
AGND
–15V
EN DIS
D2
1
L OPTION BOARD
TB6 TB7
TP7 TP8
12V ISO ISO COM
Jumper
J13
J13
31
+5V DC
1 to 2
+12V DC
2 to 3
Purpose
Jumper
J5
Position
1 to 2
2 to 3
Purpose
BRAM Write Enable
BRAM Write Disabled
14
12
1
8
Status
LED STATE DESCRIPTION
D1 (Green) OFF
Flashing
Solid ON
D2 On or No Power
Adapter Warning Fault
Adapter OK
D2 (RED) OFF
Flashing
Solid ON
D1 On or No Power
Adapter Soft Fault
Adapter Hard Fault
TE
1
20
J10 J12
20
1
Refer to Fault Codes in Table 6.B
Pulse Input Voltage Selection

Table of Contents

Other manuals for Allen-Bradley 1336 FORCE

Related product manuals