EasyManua.ls Logo

Answer Drives GT3000 - Page 101

Answer Drives GT3000
128 pages
Print Icon
To Next Page IconTo Next Page
To Next Page IconTo Next Page
To Previous Page IconTo Previous Page
To Previous Page IconTo Previous Page
Loading...
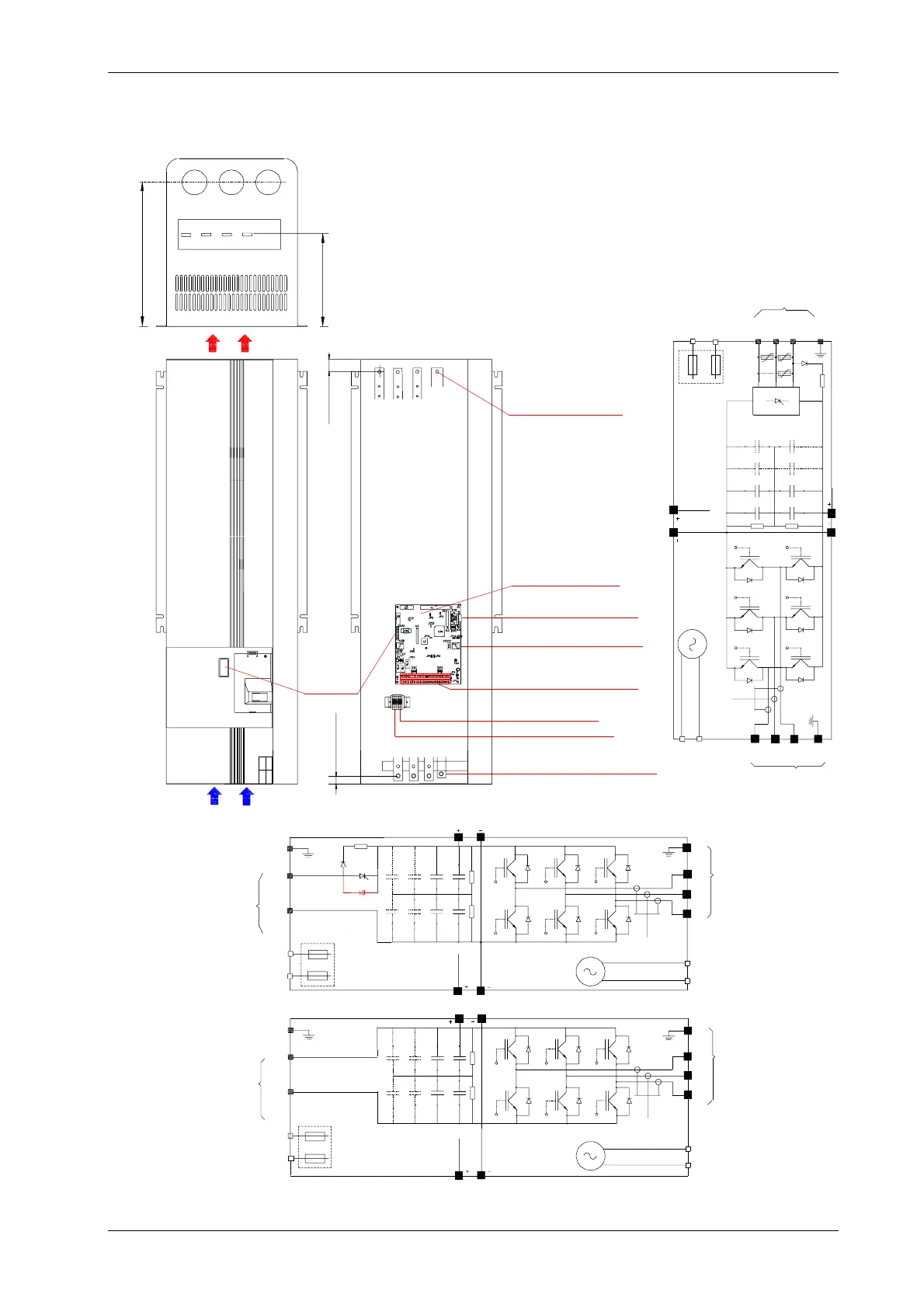
GT3000 Terminal Boards and Power Schematics
IMGT30017EN 89
SVGT105/130/170K/J
199
7.83 in
230V 50/60Hz
0,5A
LF1
LF2
+
4A
-
230V 50/60Hz
0,9A
LV1
LV2
W
PE
V
U
Base/Plus
0,5A
230V 50/60Hz
PE
PE
+P
LF1
LF2
-
4A
43.5
[1.71in]
PE
LF1-LF2
LV1-LV2
V
U
W
[1.26in]
32
L3
L1
L2
PE
230V 50/60Hz
230V 50/60Hz
0,9A
LV2
LV1
PE
W
V
U
LV1
LV2
0,9A
U
V
W
PE
LF2
230V 50/60Hz 0,5A
Boards supply
Fan
LF1
4A
L1
L3
L2
PE
339,78
13.377 in
SVGT105÷170 K
FRAME VIL
Motor Connections
Input Power Connections
MAINS
J 21 Version
MAINS (DC)
MAINS (DC)
J Version
Boards Supply
Boards Supply
Connections
Field Bus
MOTOR
Fan
Microprocessor
Control Supply
Control Connections
Fan Connections
Motor Earth Connection
PC Tool Connection
Keypad Connection
Protection
Fan
MOTOR
MOTOR
Earth Connection