EasyManua.ls Logo

Answer Drives GT3000 - Page 108

Answer Drives GT3000
128 pages
Print Icon
To Next Page IconTo Next Page
To Next Page IconTo Next Page
To Previous Page IconTo Previous Page
To Previous Page IconTo Previous Page
Loading...
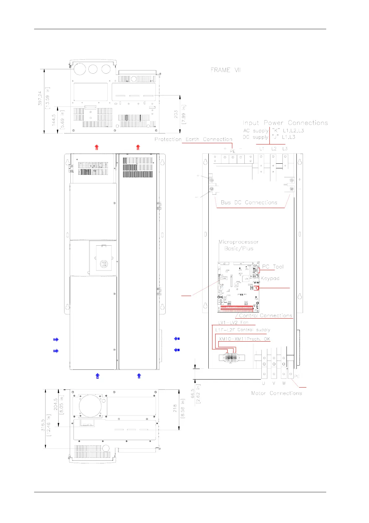
Terminal Boards and Power Schematics GT3000
96 IMGT30017EN
SVGT200/260/320K/J
Motor earth connection
Field bus