EasyManua.ls Logo

Answer Drives GT3000 - Page 111

Answer Drives GT3000
128 pages
Print Icon
To Next Page IconTo Next Page
To Next Page IconTo Next Page
To Previous Page IconTo Previous Page
To Previous Page IconTo Previous Page
Loading...
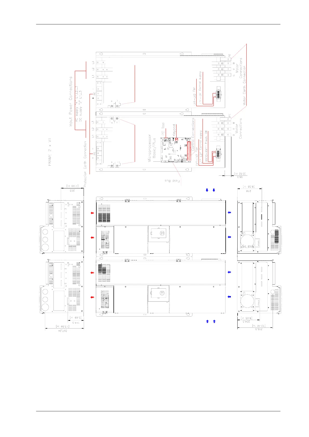
GT3000 Terminal Boards and Power Schematics
IMGT30017EN 99
FRAME VII x 2 SVGT640K/J
Not availble for J version
Bus DC Connections
Not availble for J version
Bus DC Connections