EasyManua.ls Logo

Answer Drives GT3000 - Page 25

Answer Drives GT3000
128 pages
Print Icon
To Next Page IconTo Next Page
To Next Page IconTo Next Page
To Previous Page IconTo Previous Page
To Previous Page IconTo Previous Page
Loading...
GT3000 Technical Data
IMGT30017EN 13
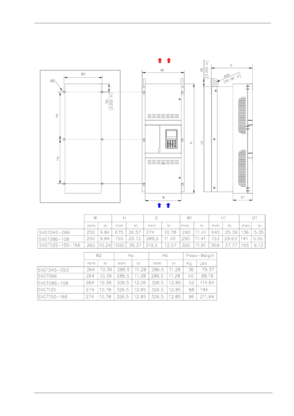
Frames IV-V-VIN
SVGT045-166 IP20