EasyManua.ls Logo

Answer Drives GT3000 - Page 30

Answer Drives GT3000
128 pages
Print Icon
To Next Page IconTo Next Page
To Next Page IconTo Next Page
To Previous Page IconTo Previous Page
To Previous Page IconTo Previous Page
Loading...
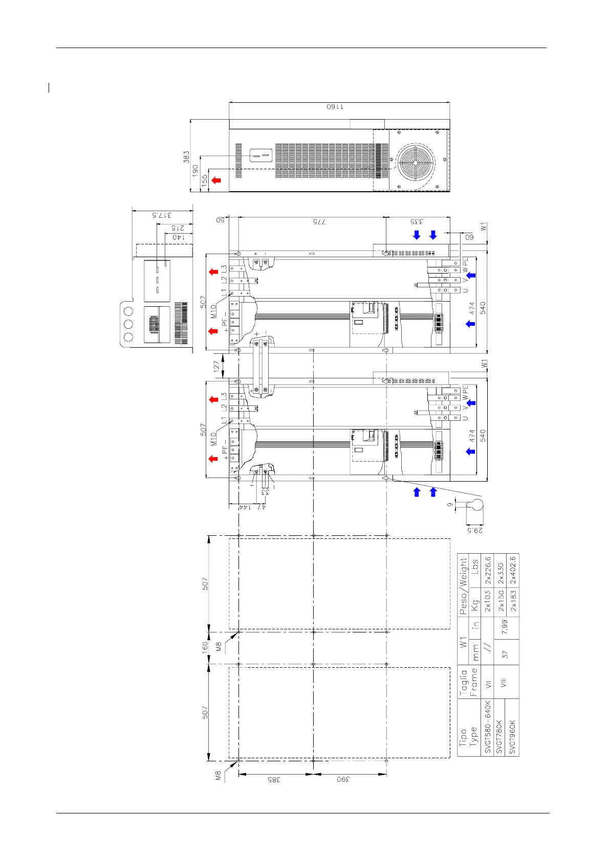
Technical Data GT3000
18 IMGT30017EN
K series Frames 2xVII–2xVIII (Parallel) IP00
SVGT580-960K