EasyManua.ls Logo

Answer Drives GT3000 - Page 98

Answer Drives GT3000
128 pages
Print Icon
To Next Page IconTo Next Page
To Next Page IconTo Next Page
To Previous Page IconTo Previous Page
To Previous Page IconTo Previous Page
Loading...
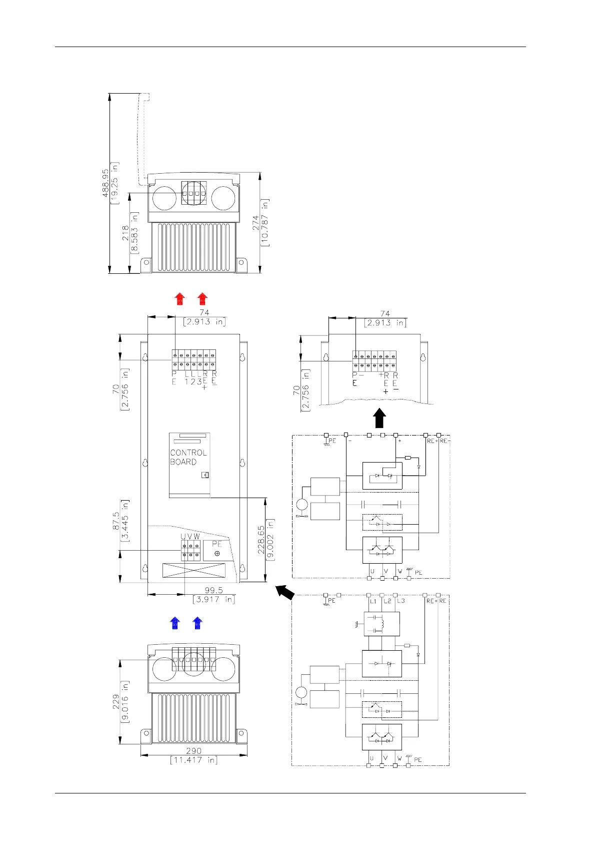
Terminal Boards and Power Schematics GT3000
86 IMGT30017EN
FRAME IVN SVGT045-053-066F (AC supply)
SVGT045-053-066
DC
Power
supply
Control
Board
6P & Brake
6P & Brake
DC
Power
supply
Control
Board