EasyManua.ls Logo

Argo R410A - ADS Type: Concealed-Duct; Minimum Space for ADS Unit Installation

Argo R410A
130 pages
Print Icon
To Next Page IconTo Next Page
To Next Page IconTo Next Page
To Previous Page IconTo Previous Page
To Previous Page IconTo Previous Page
Loading...
ADS
58
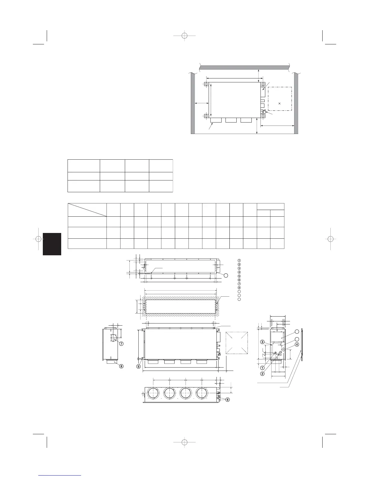
Fig. 3-98
Fig. 3-99
Indoor unit
Inspection
access
450 450
Air outlet duct flange
min. 250
min. 400
min. 650
580
A (Suspension bolt pitch)
Electrical
component box
Refrigerant
tubing
min.
250
Concealed-Duct Type (ADS Type)
3-30. Required Minimum Space for Installation and
Service
This air conditioner is usually installed above the ceiling
so that the indoor unit and ducts are not visible. Only
the air intake and air outlet ports are visible from below.
The minimum space for installation and service is
shown in Fig. 3-98 and Table 3-5.
It is recommended that space is provided (450 × 450
mm) for checking and servicing the electrical system.
Fig. 3-99 and Table 3-6 show the detailed dimensions
of the indoor unit.
Table 3-5
Table 3-6
Type
A (Length)
Number of
duct flanges
106, 140
1,560
4
73
1,080
3
22, 28, 36, 56
780
2
Dimension
Type
22, 28, 36, 56
73
106, 140
E
F
G H
I
J
K
662
600
700 780 290 262 680 715 180 340 8 12
(200 × 3)
962
900
1,000 1,080 290 272 980 1,015 130
245
250 12 16
(180 × 5) (245 ×
1)
1,442
1,380
1,480 1,560
335
310
1,460 1,495 130
490
240 16 18
(230 × 6) (245 ×
2)
No. of holes
LM
C
D
B
A
Refrigerant tubing joint (liquid tube)
Refrigerant tubing joint (gas tube)
Upper drain port (O.D. 32 mm)
Bottom drain port (O.D. 26 mm)
Suspension lug
Power supply outlet (2-ø30)
Fresh air intake port (ø150)
Flange for the flexible air outlet duct (ø200)
Tube cover
Electrical component box
Flange for the air intake duct
(Option or field supply)
9
10
9
10
11
11
(Suspension bolt pitch)
(Suspension bolt pitch)
M-ø3.3
(Hole)
4-ø12
(Hole)
(Hole)
A (O.D.)
L-ø6
I
10 10
10
5555 200
10
IJJK
B
C
D(150)
40
EEEF75
65
285
70 130
25 210
310
25
175
35
90
3131
H (Duct suspension bolt pitch)
G (Ceiling opening dimension)
25
100
185
58025
115
190
85
25
70 30
160
630 25
10
88
275
(Ceiling opening dimension)
260
(O.D.)
1919
Inspection access
(450 × 450)
(Field supply)
Inspection access panel
Ceiling
Unit: mm
Unit: mm
Unit: mm
Unit: mm
06-065 Mini ECO-i II for ARGO 2/8/06 4:37 PM Page 58

Table of Contents

Related product manuals