EasyManua.ls Logo

Belden HIRSCHMANN GRS106 - Dimension Drawings

Belden HIRSCHMANN GRS106
78 pages
Print Icon
To Next Page IconTo Next Page
To Next Page IconTo Next Page
To Previous Page IconTo Previous Page
To Previous Page IconTo Previous Page
Loading...
64
Installation GRS105/GRS106
Release
01
11/2021
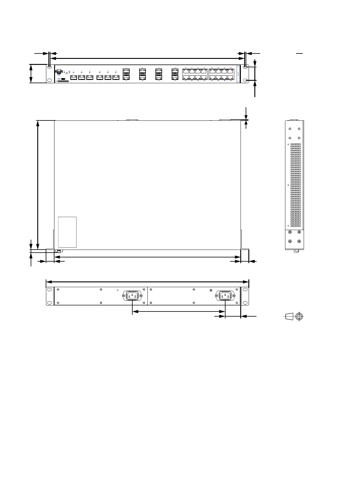
13.7 Dimension drawings
Figure 23: Dimension drawings: Dimensions for GRS105/GRS106 device variants
(Example: GRS106-6F8F16TSGG...)
19,3
0.76
444
17.5
7
0.28
308
12.13
44
1.73
3,3
0.13
3,3
0.13
mm
inch
462,6
18.21
19,3
0.76
31,75
1.49
482,6
19
FR
2
0.8
221
8.7
37
1.46

Table of Contents

Related product manuals