EasyManua.ls Logo

Broaster VF-2 - Vf3 I

Broaster VF-2
108 pages
Print Icon
To Next Page IconTo Next Page
To Next Page IconTo Next Page
To Previous Page IconTo Previous Page
To Previous Page IconTo Previous Page
Loading...
7-9
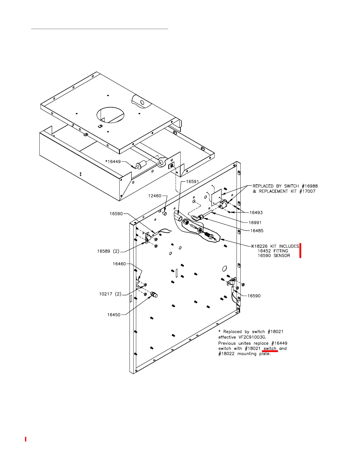
INTERLOCK SWTICHES - VF3i
broaster.com Manual #16501 7/06 Rev 08/22

Other manuals for Broaster VF-2

Related product manuals