EasyManua.ls Logo

Brooks 8200 - Installation, Operation and Servicing Instructions; Air and Water Cooled 8200 Compressor Dimensions

Default Icon
56 pages
Print Icon
To Next Page IconTo Next Page
To Next Page IconTo Next Page
To Previous Page IconTo Previous Page
To Previous Page IconTo Previous Page
Loading...
8200 Compressor Introduction
Installation, Operation, and Service InstructionsInstallation, Operation and Servicing In-
Brooks Automation 8040353
Revision AA
1-3
Installation, Operation and Servicing Instructions
Installation, Operation and Servicing Instructions for your 8200 Compressor provide
easily accessible information. All personnel with installation, operation, and servicing
responsibilities should become familiar with the contents of these instructions to
ensure high quality, safe, reliable performance.
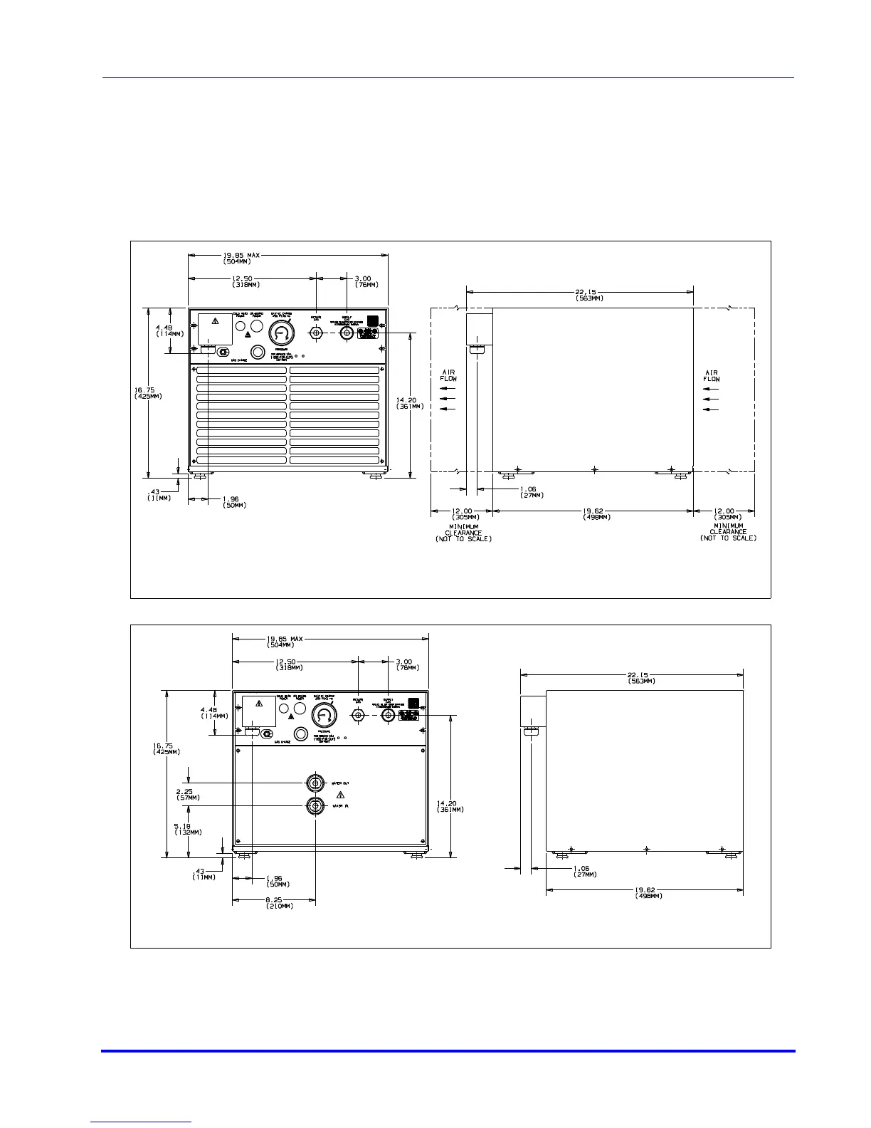
Figure 1-1: Air and Water Cooled 8200 Compressor Dimensions
Air Cooled
Water Cooled

Table of Contents