EasyManua.ls Logo

Brooks 8200 - Components in the Electrical Control Chassis of the 8200 Compressor Three-Phase Scott-T Configuration; Components in the Electrical Control Chassis of the 8200 Compressor Sin- Gle-Phase RC Configuration

Default Icon
56 pages
Print Icon
To Next Page IconTo Next Page
To Next Page IconTo Next Page
To Previous Page IconTo Previous Page
To Previous Page IconTo Previous Page
Loading...
8200 Compressor Appendices
Installation, Operation, and Service Instructions Appendix D: Components in the Electri-
Brooks Automation 8040353
Revision AA
6-11
Appendix D: Components in the Electrical Control Module of the 8200 Com-
pressor
The following illustrations are shown in this chapter:
Components in the Electrical Control Chassis of the 8200 Compressor
Three-Phase Scott-T Configuration (this page)
Components in the Electrical Control Chassis of the 8200 Compressor Sin-
gle-Phase RC Configuration
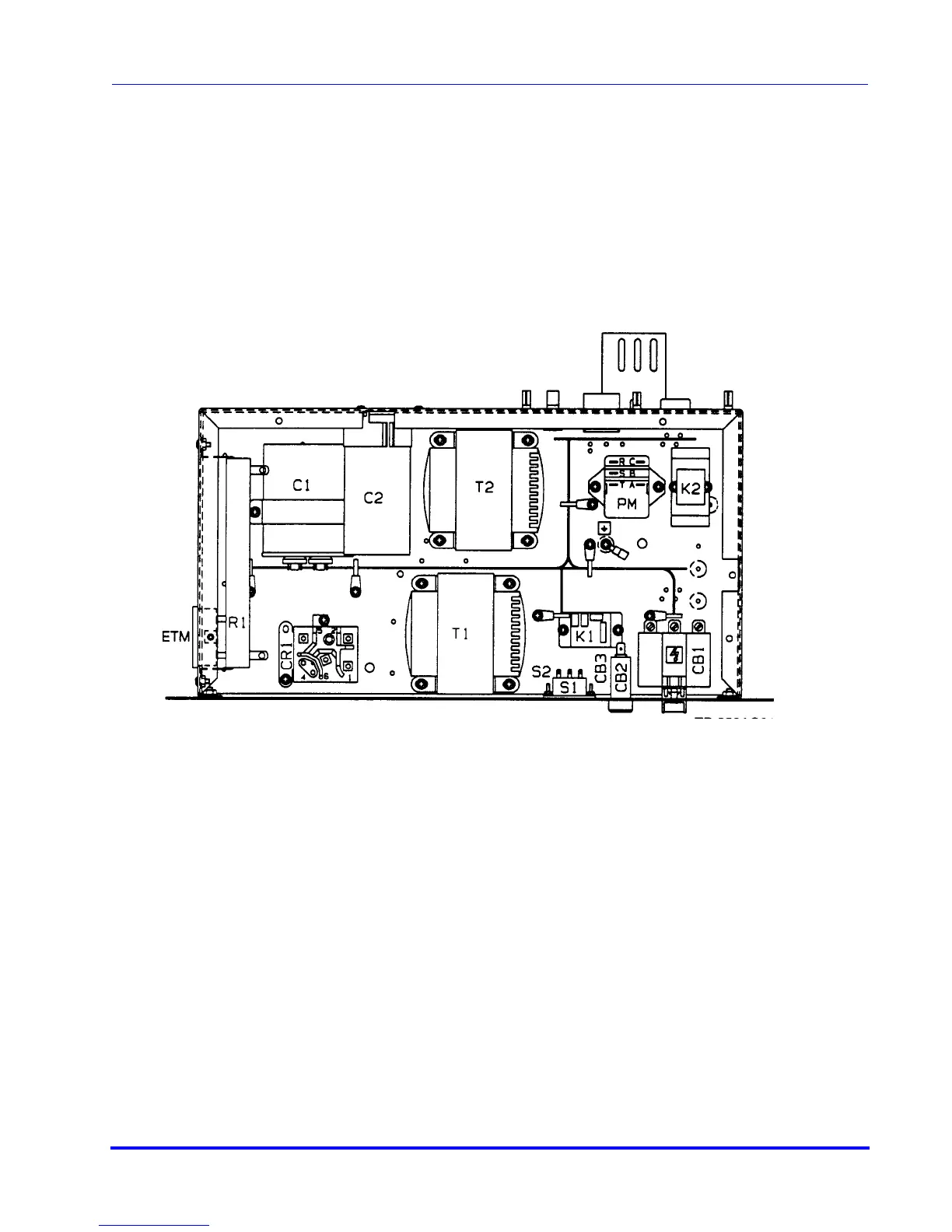
Figure 6-3: Components in the Electrical Control Chassis of the 8200 Compressor
Three-Phase Scott-T Configuration
1. Overtemperature ResistorR1
2. Run Capacitor, 35 µfC1
3. Start Capacitor, 119 µfC2
4. TransformerT2
5. Phase MonitorPM
6. Voltage Selector RelayK2
7. Main Circuit BreakerCB1
8. Circuit Breaker, 3ACB2
9. Circuit Breaker, 3ACB3
10. Voltage Selector SwitchS1
11. Frequency Selector SwitchS2
12. Overtemperature Trip RelayK1
13. TransformerT1
14. Motor Start RelayCR1
15. Meter, Elapsed TimeETM

Table of Contents