EasyManua.ls Logo

Brooks 8200 - Page 52

Default Icon
56 pages
Print Icon
To Next Page IconTo Next Page
To Next Page IconTo Next Page
To Previous Page IconTo Previous Page
To Previous Page IconTo Previous Page
Loading...
Appendices 8200 Compressor
Appendix D: Components in the Electrical Control Module of the 8200 Compressor
8040353 Brooks Automation
6-12 Revision AA
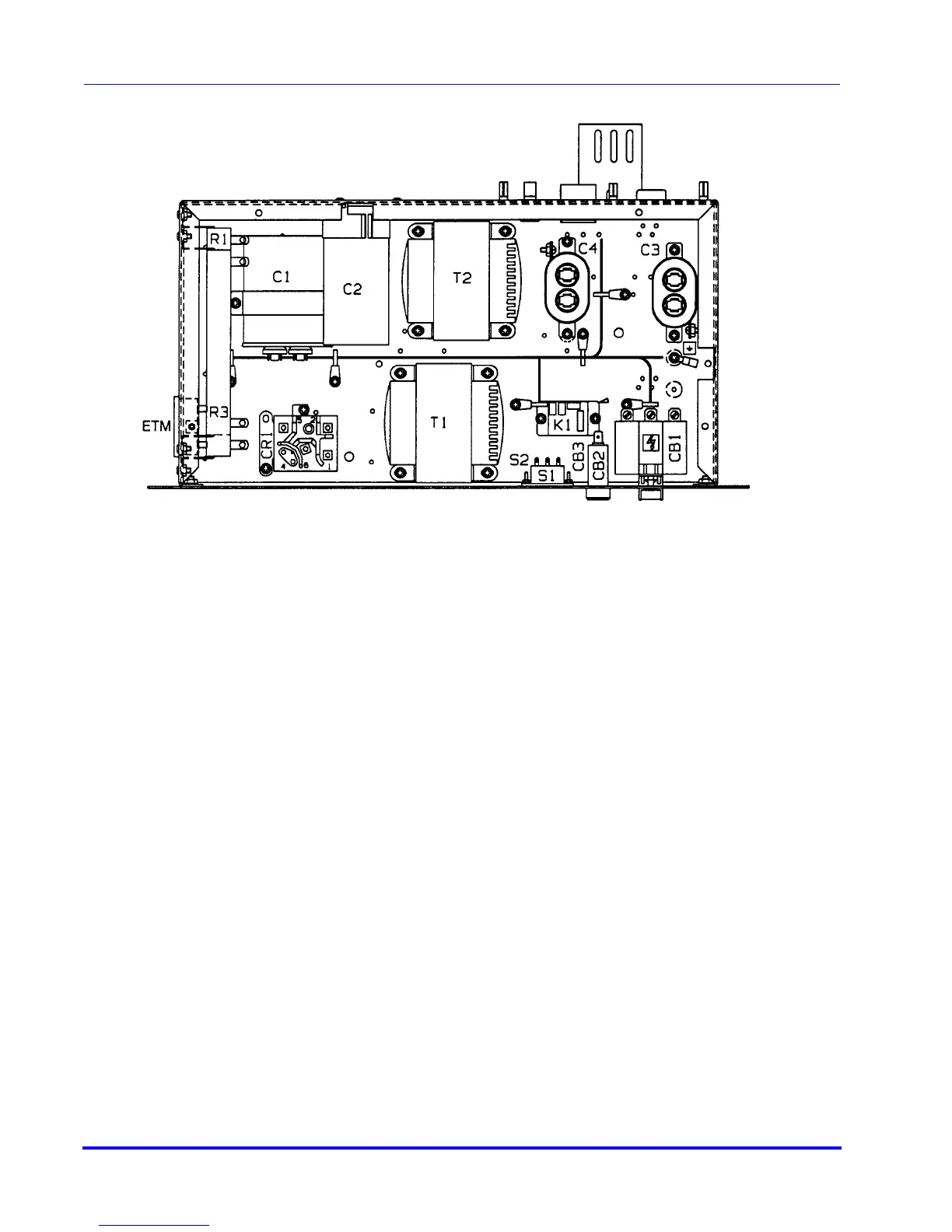
Figure 6-4: Components in the Electrical Control Chassis of the 8200 Compressor
Single-Phase RC Configuration
1. Coldhead Phase-Shifting ResistorR3
2. Overtemperature Resistor R1
3. Run Capacitor, 35 µf C1
4. Start Capacitor, 119 µf C2
5. Transformer T2
6. Run Capacitor, 2 µf C4
7. Run Capacitor, 6 µf C3
8. Main Circuit BreakerCB1
9. Circuit Breaker, 3ACB2
10. Circuit Breaker, 3ACB3
11. Voltage Selector SwitchS1
12. Frequency Selector SwitchS2
13. Relay, Trip RelayK1
14. TransformerT1
15. Motor Start RelayCR1
16. Meter, Elapsed TimeETM

Table of Contents