EasyManua.ls Logo

Buell P3 2003 - Page 26

Buell P3 2003
413 pages
Print Icon
To Next Page IconTo Next Page
To Next Page IconTo Next Page
To Previous Page IconTo Previous Page
To Previous Page IconTo Previous Page
Loading...
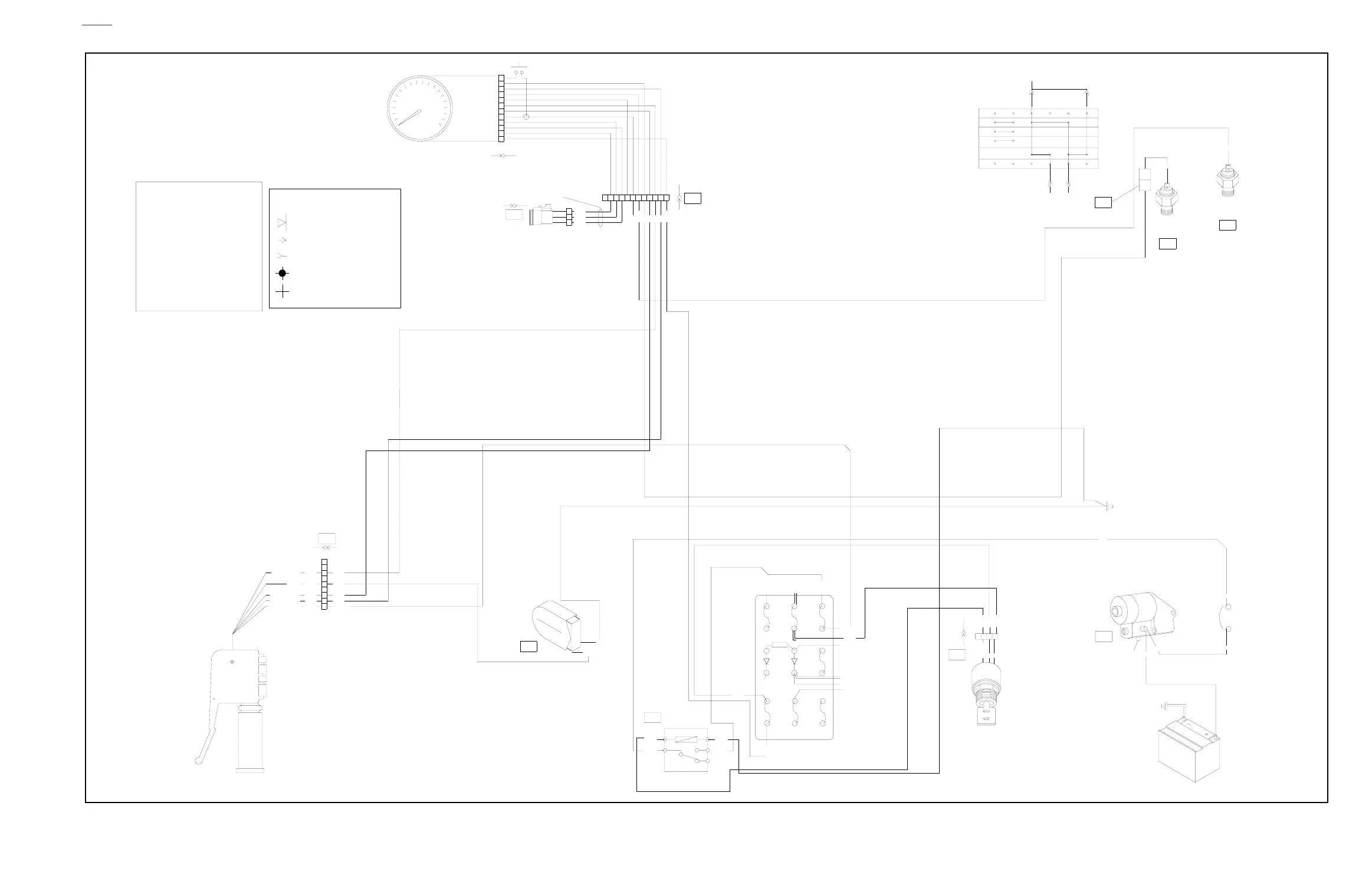
B-10 Appendix B: Wiring
HOME
Figure B-13. 2003 Buell Blast P3 Model - Horn and Instruments
Y/BK
33
GN/Y
120
OIL PRESSURE
SWITCH
131
NEUTRAL
SWITCH
TN
39
BN
V
O
R/GY
SENSOR
SPEED
TWISTED TRIPLET
C
B
A
R
BK
W
12
11
10
9
BK
GN/Y
V
W
BN
O/W
8
7
6
5
4
3
21
Y
LEFT TURN
LBE
RIGHT TURN
HIGH BEAM
BK W
O/W
R/GY
65
TN
K/BGN
16 Y
16 GY
16 R 2
18 O/W16 R/BK
ZADI KEY SWITCH
12A RATING
16 GN/B
6A RATING
6A RATING
16 R
BC
DA
FEDCBA
ON
OFF
PARK
LOCK
FEDCBA
KEY SWITCH LOGIC
R 2
(TO BATT NEG)
MAIN CHASSIS GROUND
R/BK
BK
R
R/BK
KEY SWITCH
R 2
D
C
B
A
24
O
Y/BKGN
HORN
GY
HORN POWER
122
BK
HORN
9
2
8
7
6
5
4
3
1
R
7.5A
7.5A
7.5A
15A
MASTER C/B
ACCESSORY
SPARE
IGNITION
15A
SPARE
DIODE 2
DIODE 1
15A
SYSTEM
KEY SWITCH
15A
LIGHTS
O
R/B 1
RELAY
SYSTEM
87A
87
85
30
86
R
R 1
BK
R 1
R/B 1
GN
R
30A
128
TN/Y
COLOR CODE:
BE BLUE
BK BLACK
BN BROWN
GN GREEN
GY GRAY
O ORANGE
PK PINK
R RED
TN TAN
V VIOLET
W WHITE
Y YELLOW
LT. LIGHT
DIODE
NO CONNECTION
PIN CONNECTOR
SOCKET CONNECTOR
SPLICE CONNECTION
CONNECTOR CODE:
172
VEH SPD SIGNAL
SPEEDOMETER
ELECTRONIC
TRIP RESET SWITCH
NOT USED
ACCESSORY
SPD SENSOR RETURN
SPD SENSOR PWR
GROUND
RIGHT TURN
LEFT TURN
HIGH BEAM
OIL
NEUTRAL
TRIP RESET
12
11
10
9
8
7
6
5
4
3
2
1
171
a0279x7x

Table of Contents

Related product manuals