EasyManua.ls Logo

Burkert 8605 - Configuration and Function; Operating and Display Elements; Operating unit

Burkert 8605
118 pages
Print Icon
To Next Page IconTo Next Page
To Next Page IconTo Next Page
To Previous Page IconTo Previous Page
To Previous Page IconTo Previous Page
Loading...
13
Configuration and Function
 


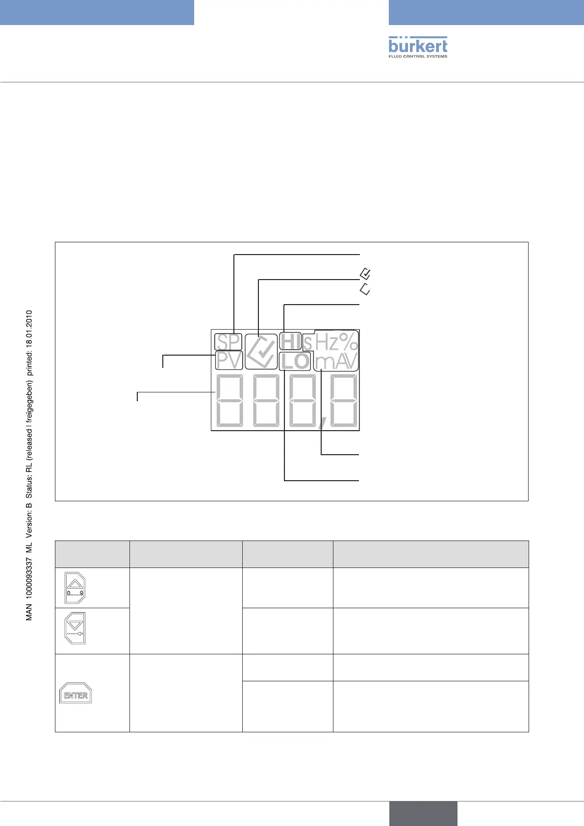
The operating unit consists of a LCD and keys. It is used for displays and settings of the Control Electronics, Type
8605.
Unit of the displayed value
(s, Hz, %, mA, V)
LCD
Lower limit
= active
= not active
Setpoint = Setpoint
(of the coil current)
Process value = Actual value
(of the coil current)
Upper limit
Operating unitFigure 3:

  


Switch over the display
value
PV [mA] process value
PV [%] process value
SP [%] setpoint
TV [%] duty cycle
Scroll up
(selection)
Increment (increase)
numerical values
Scroll down
(selection)
Decrement (decrease)
numerical values
3 sec
Enter configuration mode
Confirm the
selected menu item
Select and deselect the individual menu
items
Switch between
main-menu and
sub-menu items
e. g.: Out-VALV
Confirm set values
english


Table of Contents

Other manuals for Burkert 8605

Related product manuals