EasyManua.ls Logo

Burnham ALPINE - III. Unpacking Boiler; Unpacking Boiler

Burnham ALPINE
132 pages
Print Icon
To Next Page IconTo Next Page
To Next Page IconTo Next Page
To Previous Page IconTo Previous Page
To Previous Page IconTo Previous Page
Loading...
17
III. Unpacking Boiler
CAUTION
Do not drop boiler.
A. Move boiler to approximate installed position.
B. Remove all crate fasteners.
C. Lift and remove outside container.
D. Remove boiler from cardboard positioning sleeve on
shipping skid.
WARNING
Installation of this boiler should be undertaken
only by trained and skilled personnel from a
qualied service agency.
E. Move boiler to its permanent location.
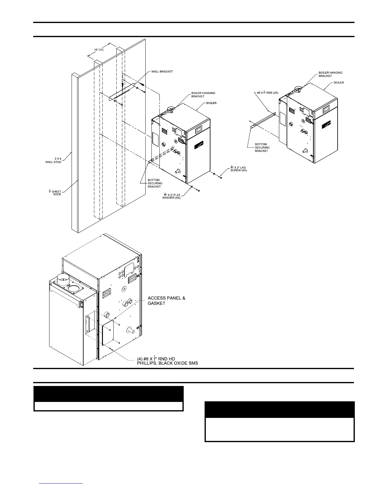
Figure 2D: Bottom Mounting Bracket Installation / Boiler Wall Mounting
Figure 2E: Access Panel and Gasket Installation
II. Pre-Installation & Boiler Mounting (continued)

Other manuals for Burnham ALPINE

Related product manuals