EasyManua.ls Logo

Chamberlain JDC - Cable Tension Monitors; Install the Cable Tension Monitor(S) (Optional)

Chamberlain JDC
70 pages
Print Icon
To Next Page IconTo Next Page
To Next Page IconTo Next Page
To Previous Page IconTo Previous Page
To Previous Page IconTo Previous Page
Loading...
26
Cable Tension Monitors
Install the Cable Tension Monitor(s) (Optional)
TWO CABLE TENSION MONITORS MAY BE
CONNECTED TO THIS OPERATOR.
THE CABLE TENSION MONITORS DETECT ANY
SLACK THAT MAY OCCUR IN THE CABLES AND
WILL RESPOND ACCORDINGLY.
NOTE: ONLY USE THE LIFTMASTER CABLE
TENSION MONITORS, AS THEY HAVE BEEN
TESTED AND APPROVED FOR THIS SYSTEM. See
"Accessories" on page 63.
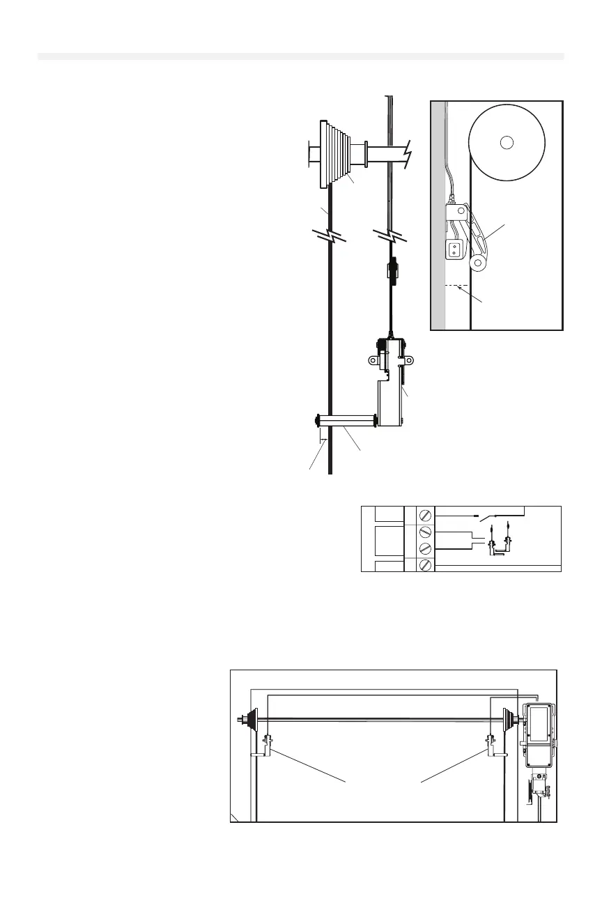
1. Make sure the door cable is approximately
1"-2" (25-50 mm) from the mounting surface.
Door adjustments or shimming may be
required to achieve proper depth for the door
cable. The bracket must be ush with the
mounting surface.
2. Position the cable tension monitor as close to
the drum as possible. The optimal distance of
the cable from the wall surface is no more than
2.5" (6.35 cm), and be sure the roller extends
1/8"-1/4" past the cable. Make sure the cable
tension monitor and roller is free from any
obstructions in all positions of operation.
NOTE: There must be no obstructions in the
installation area that prevent the cable tension
monitor from closing completely when slack is
detected.
NOTE: Cable tension monitors must either
be anchored to concrete, or a wood stud with
appropriate fasteners. If neither are available,
toggle bolt style drywall anchors with at least
a 50 lbs rating are acceptable.
3. Run bell wire to the door operator junction box, and down to
the control box through conduit as shown on the right.
4. Once the controller is installed, connect the bell wires
parallel to the CTM and CMN terminals on the terminals on
the controller (polarity is not important). See "Wall Controller
Installation" on page 23 for installation information. Once
installed, follow these steps to connect the wiring.
5. Connect the bell wires in parallel to the CTM and CMN terminals on the controller (polarity is not important). To
simplify installation, the cable tension monitors can be wired together in the operator junction box, with only one
pair of bell wires running down to the controller.
6. Repeat steps 1-5 for the opposite side of the door. Both cable tension monitors must be installed for proper
operation.
NOTE: Cable must have
tension through entire door
travel. Make sure there is no
slack in cable on opposite
side of door during normal
operation. If slack occurs
during door travel, adjust
cables as required.
Drum
Cable
Cable
Tension
Monitor
Cable Tension
Monitor Roller
1/4"-3/8"
(6.4-95 mm)
Cable Tension Monitors
a
e
Drum
Cable tension
monitor
Approx. 1-2"
25-60cm
(when door is closed)
OVERVIEW
21 22 23 24
SBC
CMN
CTM
CMN
CABLE TENSION
MONITORS
SBC
Drum
Cable
Cable
Tension
Monitor
Cable Tension
Monitor Roller
1/4"-3/8"
(6.4-95 mm)
Cable Tension Monitors
a
e
Drum
Cable tension
monitor
Approx. 1-2"
25-60cm
(when door is closed)
OVERVIEW
21 22 23 24
SBC
CMN
CTM
CMN
CABLE TENSION
MONITORS
SBC
Drum
Cable
Cable
Tension
Monitor
Cable Tension
Monitor Roller
1/4"-3/8"
(6.4-95 mm)
Cable Tension Monitors
a
e
Drum
Cable tension
monitor
Approx. 1-2"
25-60cm
(when door is closed)
OVERVIEW
21 22 23 24
SBC
CMN
CTM
CMN
CABLE TENSION
MONITORS
SBC

Table of Contents

Related product manuals