EasyManua.ls Logo

Champion Eseries - Page 31

Champion Eseries
228 pages
Print Icon
To Next Page IconTo Next Page
To Next Page IconTo Next Page
To Previous Page IconTo Previous Page
To Previous Page IconTo Previous Page
Loading...
23
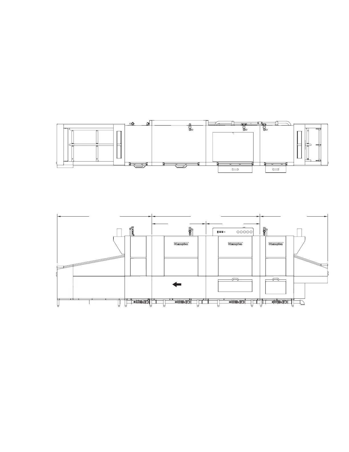
1. The illustrations below are an example machine, your machine may be different.
Installation
POWER
RINSE
POWER
WASH
PREWASHFINAL
RINSE
DIRECTION OF
OPERATION
LOAD END "A"
WASH/RINSE "C"
UNLOAD END "B"
RINSE "C1" WASH "C1"
Plan View
(machine viewed from above)
Elevation View
(machine viewed from front)
Installation Instructions

Table of Contents

Related product manuals