EasyManua.ls Logo

Circutor CVM-C5 Series - Page 48

Circutor CVM-C5 Series
54 pages
Print Icon
To Next Page IconTo Next Page
To Next Page IconTo Next Page
To Previous Page IconTo Previous Page
To Previous Page IconTo Previous Page
Loading...
(Continuation) Pulse output (CVM-C5-xxx-RS485-C)
(1)
Minimum pulse width 100ms(Ton:100ms,To󰀨:100ms)
Digital input (CVM-C5-xxx-RS485-I)
(1)
Type Potentialfreecontact
Insulation Optoisolated
(1)
MustbeconnectedtoSELVcircuit�
User interface
Display LCD(60x54mm)
Keyboard 3keys
Environmental features
Operating temperature -5ºC���+45ºC
Storage temperature -10ºC���+50ºC
Relative humidity (non-condensing) 5���95%
Maximum altitude 2000 m
Protection degree
(2)
IP21
Frontpanel:IP51
(2)
Thispollutiondegreehasn’tbeentestedbyUL�
Mechanical features
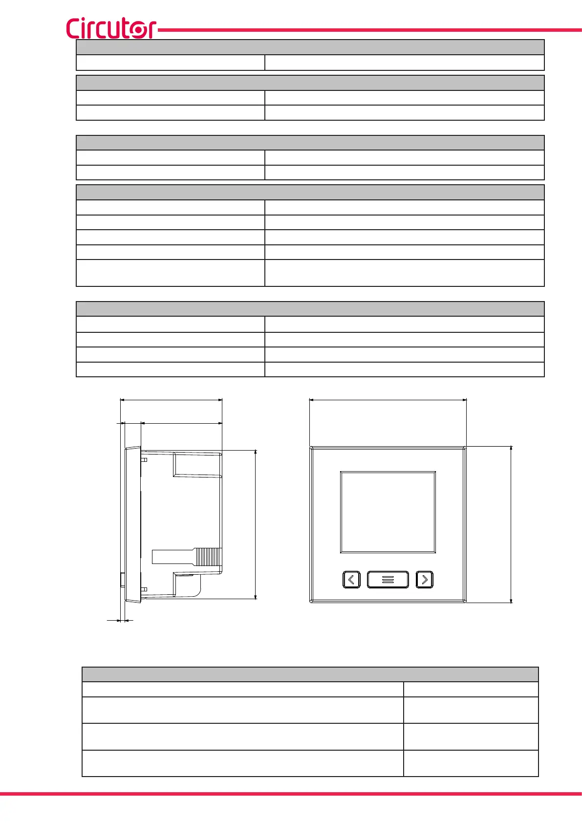
Dimensions ( Figure 16) 96�7x96�7x62�6mm
Weight 480gr
Enclosure V0self-extinguishingplastic
Attachment Panel
62.6
9.9
50
91.8
2.7
96.7
96.7
Figure 17:Dimensions�
Standards
Safety of electronic measuring units IEC61010:2010
Electromagnetic compatibility (CEM)� Part 6-4: Generic standards�
Emissions standard for industrial environments�
UNE-EN61000-6-4:2007
Electromagnetic compatibility (CEM)� Part 6-2: Generic standards�
Immunity for industrial environments�
UNE-EN61000-6-2:2006
Safety requirements for electrical equipment for measurement,
control, and laboratory use - Part 1: General requirements
UL/CSA61010-13rdedition
48
CVM-C5-xxx-485
Instruction Manual

Table of Contents

Related product manuals