EasyManua.ls Logo

Cornelius IDC 255 - ELECTRICAL SCHEMATIC

Cornelius IDC 255
38 pages
Print Icon
To Next Page IconTo Next Page
To Next Page IconTo Next Page
To Previous Page IconTo Previous Page
To Previous Page IconTo Previous Page
Loading...
IDC 255 Progate Drive Thru Service Manual
© 2006-2013, IMI Cornelius Inc. - 15 - Publication Number: 621057419SER
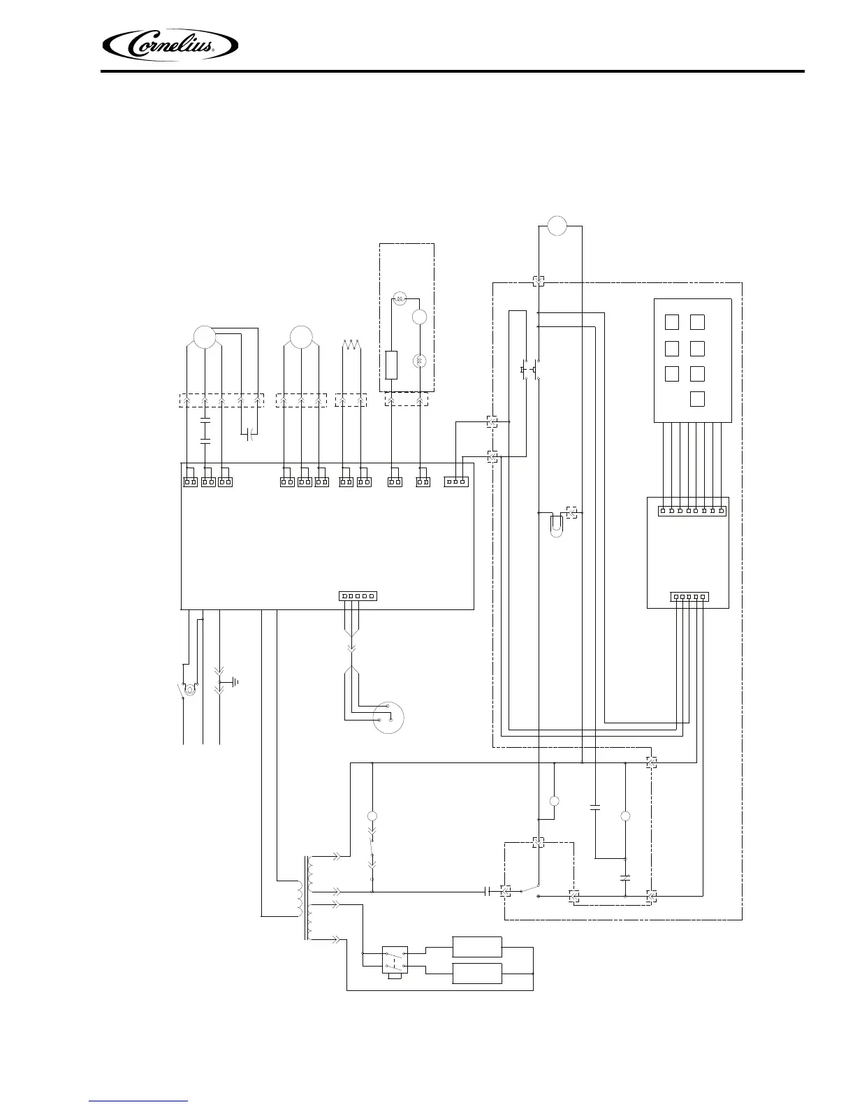
ELECTRICAL SCHEMATIC
Figure 10.
LINE VOLTAGE
BLK
T1
GRN/YEL
"CARB MOTOR GND"
L1 PWR
L2 PWR
GND
120VAC
CARBONATOR
"L2 CARB MOTOR"
GRN/YLW
BLU
BRN
"L1 CARB MOTOR"
BOARD AGITATION/ CARBONATOR
YLW
BRN
GRN/YLW
ICE AGITATION
MTR
"L2 AGITATOR"
"L1 AGITATOR"
BLK
ORG
HEATER L1
BLK
BLK
J2
J1
HEATER L2
ICE AGITATION
HEATER
HT
BALLAST L2
BALLAST L1
BLK
WHT
FLOURENSCENT
XFORMER L2
XFORMER L1
BLK
WHT
KEY SWITCH
BLUE
BLUE
BLK
BLK
LEFT
TOTAL FLEX
SOLENOID BLOCK
TOTAL FLEX
SOLENOID BLOCK
RIGHT
J4
C1
WHT
RED
BLK
CARBONATOR
WHT
BLK
RED
CARBONATOR PROBES
BALLAST
STARTER
WHT
BLK
BLK
WHT
BLK
SW2
LIGHTS
SOL1
VALVE TIMED SOLENOID
PNEUMATIC
KEYPAD
J1
25 VAC SECONDARY
120 VAC PRIMARY
(100 VA)
50/60 HZ
BOARD KEYPAD AGITATION TIMER
PROGATE 2
PB1
MANUAL MODE DISPENSE
( OPTIONAL )
GND
24 VAC2
24 VAC1
AGITATOR CONTROL
ICE GATE
PROBES
1
2
3
4
5
6
7
8
S
LEFT RIGHT PROGRAM
M
L
XL
"AGITATOR GND"
J5
2
3
1
5
4
MTR
2
1
1
2
2
1
1
2
2
1
1
2
1
2
2
1
1
2
2
1
J3
1
2
3
PB1
S2
COVER SWITCH
ENABLE/DISABLE
ICE CHUTE
CR1
AUTO/MANUAL
MODE SWITCH
SW1
CR1
CR1
ON/OFF
YLW
OFF CYCLE AGITION MOTOR
CR2
BY PASS
CR2
YLW
BLK
BLK
YLW
YLW
YLW
BLK
BLK
BLK
YLW
WHT
YLW
BLK
YLW
YLW
18AWG
18AWG
18AWG
18AWG
18AWG
18AWG
WHT
WHT
11 12
GRN/YEL
6203141825
86 68
S3
COMPONENTS LOCATED IN CONTROL BOX
0
1
0
1
2
4
5
73
1
2
1
3
CR3
0
1
6
CR3
8
4
3
CR3
P1-2
P1-3
4-1P3-1P
P1-1
34
34
ORG
GRN
GRN
ORG
ORG
YLW
BLK
PURP
GRN
PURP
PURP
P1-4
P1-5
P1-6
P1-7
PURP
LIGHT
(50 VA)
RED
RED
25
LIGHT

Table of Contents

Other manuals for Cornelius IDC 255

Related product manuals