EasyManua.ls Logo

Cornelius IDC 255 - MAIN ELECTRICAL BOX ASSEMBLY

Cornelius IDC 255
38 pages
Print Icon
To Next Page IconTo Next Page
To Next Page IconTo Next Page
To Previous Page IconTo Previous Page
To Previous Page IconTo Previous Page
Loading...
IDC 255 Progate Drive Thru Service Manual
Publication Number: 621057419SER - 16 - © 2006-2013, IMI Cornelius Inc.
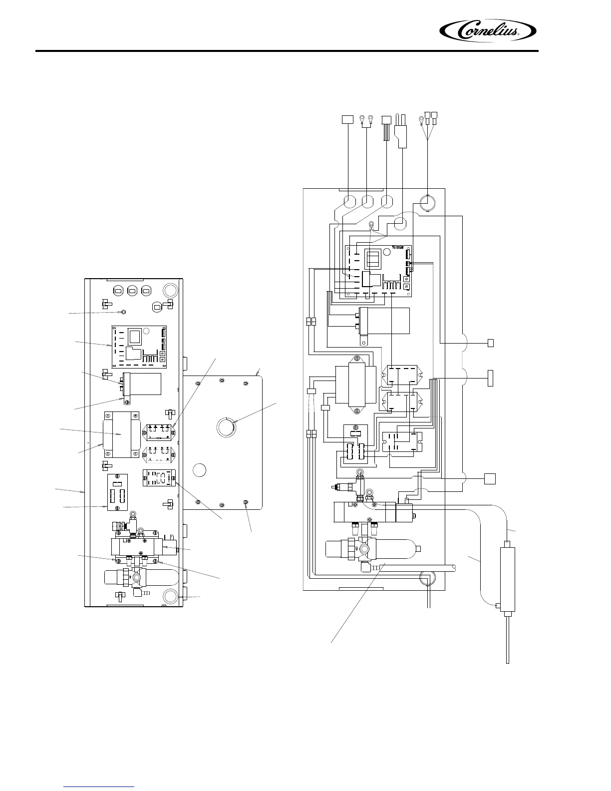
MAIN ELECTRICAL BOX ASSEMBLY
Figure 11.
6
1
7
8
0
12345
L2 IN
L1 IN
L2 BALLEST
L1 BALLEST
L2 XFORMER
L1 HEATER
L1 XFORMER
L2 HEATER
CARB MOTOR
WHT
L2 CARB MOTOR
CARB MOTOR EARTH
EARTH IN
AGITATOR L2
AGITATOR
AGITATOR EARTH
J5
J2 J1
2
4
3
4
6
8
1
0
2
1
8
4
6
2
0
CR2
CR1
CR3
PUR
WHT
BLK
YLW
PUR
BLK MODE SW
BLK
BLK
YLW
BLK
P1
YLW
YLW
BLK
BLK
YLW
AIR INPUT
PUSH
TO PNUEMATIC CYLINDER
RETRACT
KEY SWITCH
RED
RED
BLK
BLU
BLU
YEL
TRANSFORMER
CAPACITOR
PNEUMATIC SOLENOID
TERMINAL
BOARD
NO/NC RELAY
POWER
CORD
P/N 92305
LABEL
6 PLCS
2 PLCS
P/N 70217
8-32 SCEW SS
P/N 31107
TERMINAL BOARD
P/N 620314152
BOX ELECTRIC PROGATE
P/N 720500795
X-FORMER
P/N 30514
STRAP CAPAC
P/N 30774
CAPAC MOTOR AGIT
P/N 620314825
TIMER BOARD
P/N 60569001
RELAY NO
P/N 620052685
CONTROL BOX BRACKET
P/N 325192000
BUSHING 1.093
P/N 70959
TSN NUTS
P/N 620314025
RELAY NO NC
P/N 620313711
SOLENOID ASY
P/N 620052503
BRACKET
P/N 325192000
BUSHING
P/Ns: 07052009 - SCREW
0720603-NUT

Table of Contents

Other manuals for Cornelius IDC 255

Related product manuals