EasyManua.ls Logo

COVANA EVOLUTION COVER - Concrete Slab Layout Option

Default Icon
82 pages
Print Icon
To Next Page IconTo Next Page
To Next Page IconTo Next Page
To Previous Page IconTo Previous Page
To Previous Page IconTo Previous Page
Loading...
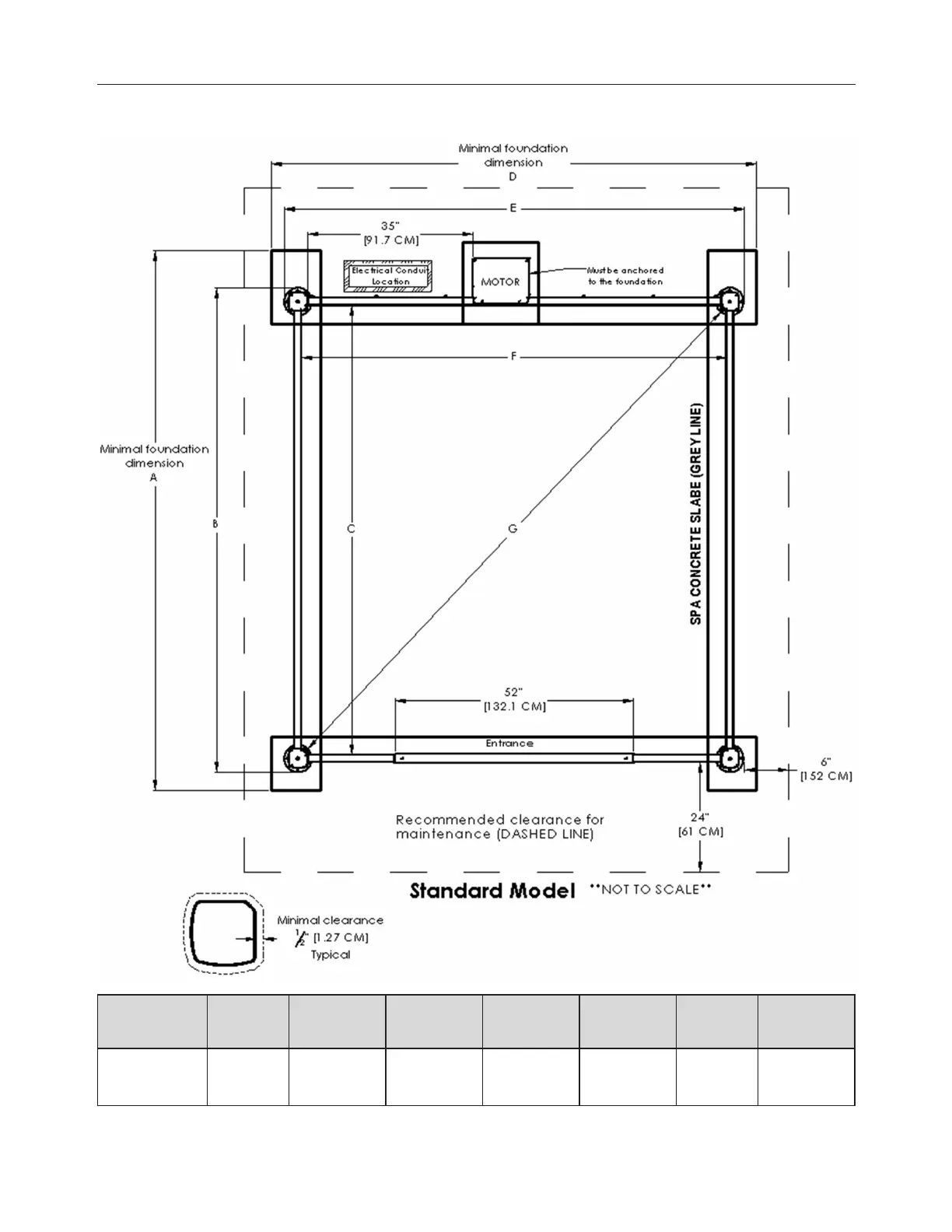
page-72 EVOLUTION COVER
CONCRETE SLAB LAYOUT OPTION
COVER
LENGTH
A B C D E F G
8' (LONG
SIDE)
113''
(287cm)
100.5''
(255.4cm)
92.75''
(235.7cm)
112''
(284.5cm)
105.75''
(268.5cm)
98''
(249cm)
131.5''
(333.9cm)
240799 OWNER'S MANUAL REVISION 4

Table of Contents