EasyManua.ls Logo

DAB Evoplus Small Series - Page 59

DAB Evoplus Small Series
Print Icon
To Next Page IconTo Next Page
To Next Page IconTo Next Page
To Previous Page IconTo Previous Page
To Previous Page IconTo Previous Page
Loading...
54
DEUTSCH
DE
Wenn 60 Minuten lang keine Taste gedrückt wird, werden die Einstellungen automatisch blo-
ckiert und das Display geht aus. Sobald eine beliebige Taste gedrückt wird, schaltet sich das
Display wieder ein und macht die “Homepage” sichtbar.
Zum Navigieren innerhalb des Menüs die mittlere Taste drücken:
Um zu der vorherigen Seite zurückzukehren, die verborgene Taste gedrückt halten und die mittlere Taste
drücken und wieder loslassen.
Zum Ändern der Einstellungen die Tasten links und rechts drücken.
Um die Änderung einer Einstellung zu bestätigen, 3 Sekunden lang die mittlere Taste “OK” drücken. Die
erfolgte Bestätigung wird durch die folgende Ikone angezeigt:
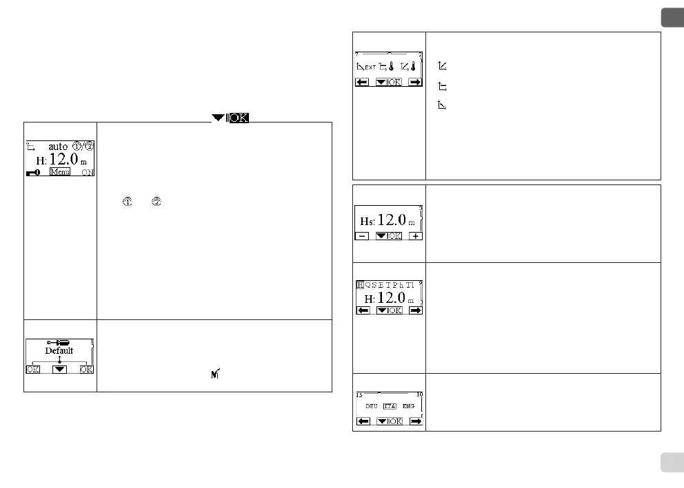
Homepage
Auf der Homepage sind die Haupteinstellungen des Systems
graphisch zusammengefasst.
Die Ikone oben links zeigt die Art der selektierten Regelung an.
Die Ikone in der Mitte oben zeigt den selektierten Funktions-
modus (Auto oder Economy) an.
Die Ikone oben rechts zeigt die Präsenz eine einzelnen
Inverters oder eines Zwillings-Inverters Das Drehen der
Ikone oder zeigt an, welche Umwälzpumpe in Betrieb ist.
In der Mitte der Homepage bendet sich ein nur lesbarer Pa-
rameter, der über die Seite 9.0 des Menüs unter einem kleinen
Satz von Parametern ausgewählt werden kann.
Von der Homepage aus kann auf die Seite der Kontrastein-
stellung des Displays zugegriffen werden: die verborgene
Taste gedrückt halten und die rechte Taste drücken und wieder
loslassen.
Die Umwälzpumpen EVOPLUS SMALL bieten 1 Benutzer-
menü. Der Zugriff auf das Benutzermenü erfolgt von der
Homepage aus, indem die mittlere Taste “Menü” gedrückt und
wieder los gelassen wird
.
Seite 1.0
Von der Seite 1.0 aus werden die werkseitigen Einstellungen
durch 3 Sekunden langes gleichzeitiges Drücken der linken
und rechten Taste eingestellt.
Die erfolgte Wiederherstellung der Werkseinstellungen wird
mit Erscheinen des Symboles neben der Aufschrift “Default”
angezeigt.
Seite 2.0
Von der Seite 2.0 aus wird der Regelmodus eingegeben. Es
kann unter den folgenden Modi gewählt werden:
1 = Regelung bei proportionalem Differentialdruck.
2 = Regelung bei konstantem Differentialdruck.
3 = Regelung auf konstante Kurve mit über Display einge
stellter Geschwindigkeit.
Die Seite 2.0 zeigt 3 Ikonen, welche die folgende Bedeutung
haben:
- mittlere Ikone = derzeit selektierte Einstellungpictograma;
- rechte Ikone = folgende Einstellung;
- linke Ikone = vorherige Einstellung.
Seite 3.0
Von der Seite 3.0 aus wird der Regelungs-Sollwert eingege-
ben.
Je nach der an der vorherigen Seite gewählten Regelung ist
der einzugebende Sollwert eine Förderhöhe, oder im Falle
einer konstanten Kurve, ein Prozentsatz der Drehgeschwin-
digkeit.
Seite 9.0
Über die Seite 9.0 kann der auf der Homepage anzuzeigende
Parameter gewählt werden:
H: Gemessene Förderhöhe in Metern
Q: Geschätzte Fördermenge m3/h
S: Drehgeschwindigkeit in Umdrehungen pro Minute (U/min)
E: Nicht vorhanden
P: Leistungsabgabe in W
h: Betriebsstunden
T: Nicht vorhanden
T1: Nicht vorhanden
Seite 10.0
Über die Seite 10.0 kann die Sprache der Meldungen gewählt
werden.

Table of Contents

Related product manuals