EasyManua.ls Logo

DAB Evoplus Small Series - Page 66

DAB Evoplus Small Series
Print Icon
To Next Page IconTo Next Page
To Next Page IconTo Next Page
To Previous Page IconTo Previous Page
To Previous Page IconTo Previous Page
Loading...
61
POLSKI
PL
przycisku wyświetlacz włączy się ponownie i pojawi się “Home Page”.
Aby móc dokonać nawigacji wewnątrz menu wcisnąć centralny przycisk.
Aby powrócić do poprzedniej strony wcisnąć ukryty przycisk, po czym wcisnąć i pozo-
stawić ten centralny.
W celu zmiany ustawień używać prawego i lewego przycisku.
Aby zapisać zmianę ustawienia wcisnąć przez 3 sekundy przycisk centralny “OK”. Po-
twierdzenie zostanie zasygnalizowane niniejszą ikoną:
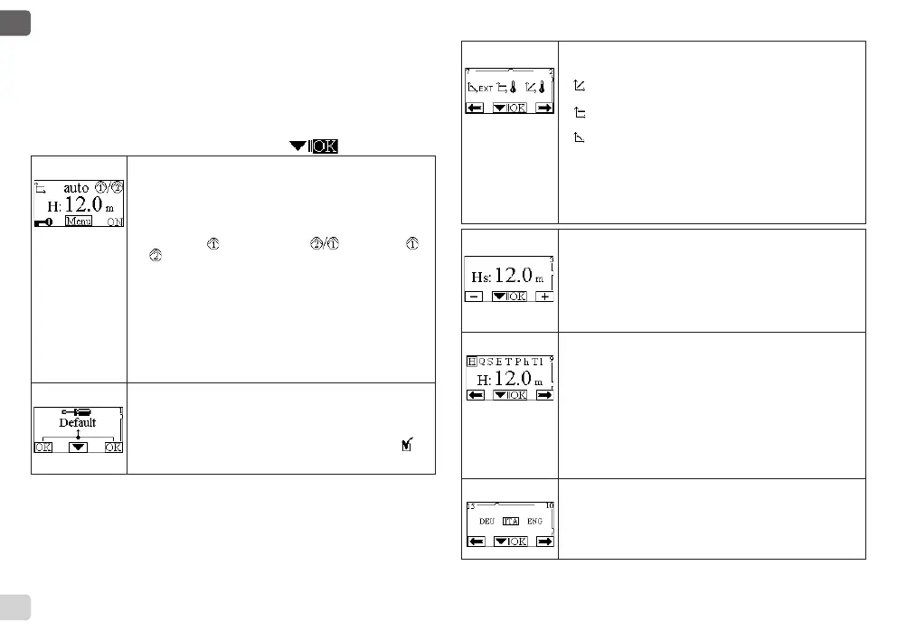
Home Page
W Home Page zostały zebrane w sposób graficzny główne
ustawienia systemu.
Ikona u góry na lewo wskazuje rodzaj wybranej regulacji.
Ikona u góry pośrodku wskazuje wybrany sposób działania
(auto lub economy).
Ikona u góry po prawej stronie wskazuje obecność pojedync-
zego inwertera bądź bliźniaczego . Obrót ikony
lub sygnalizuje, która pompa cyrkulacji działa.
Na środku Home Page znajduje się parametr jednego
wyświetlenia, który się wybiera poprzez mały set parametrów
przy pomocy strony 9.0 menu.
Z Home Page można mieć dostęp do strony regulacji kon-
trastu wyświetlacza: utrzymując wciśnięty ukryty przycisk, po
czym wcisnąć i pozostawić prawy przycisk.
Cyrkulatory EVOPLUS SMALL mają do dyspozycji menu
użytkownika dostępne poprzez Home Page wciskając i
pozostawiając centralny przycisk “Menu”
.
Strona 1.0
Poprzez Stronę 1.0 regulują się ustawienia fabryczne wciskając
jednocześnie przez 3 sekundy przyciski prawe i lewe.
Przywrócenie do pierwotnego stanu ustawień fabrycznych zo-
stanie zasygnalizowane poprzez pojawienie się symblu
blisko napisu “Default”.
Strona 2.0
Przy pomocy Strony 2.0 ustawia się sposoby regulacji. Można
wybrać wśród poniższych trybów:
1 = Regulacja ciśnienia różnicowego proporcjonalnego.
2 = Regulacja ciśnienia różnicowego stałego.
3 = Regulacja przy stałej krzywej z prędkością rotacji
ustawioną poprzez display.
Strona 2.0 wyświetla 3 ikony, które przedstawiają:
- ikonę centralną = wybrane aktualne ustawienie;
- ikonę prawę = ustawienie następne;
- ikona lewą = ustawienie poprzednie.
Strona 3.0
Poprzez Stronę 3.0 można modykować set-point regulacji.
W zależności od wybranego rodzaju regulacji na poprzedniej
stronie, set-point-em wymaganym do ustawienia będzie
wysokość ciśnienia lub, jak w przypadku stałej krzywej, pro-
cent odpowiadający prędkości rotacji.
Strona 9.0
Poprzez Stronę 9.0 można wybrać parametr do wyświetlenia
na Home Page:
H: Wysokość ciśnienia mierzona i wyrażona w metrach
Q: Natężenie przepływu określone w N m3/h
S: Prędkość rotacji wyrażona w obrotach na minutę (rpm)
E: Brak
P: Moc wyprodukowana wyrażona w W
h: Godziny działania
T: Brak
T1: Brak
Strona 10.0
Poprzez stronę 10.0 można wybrać język, w którym będą
wyświetlane komunikaty.

Table of Contents

Related product manuals