EasyManua.ls Logo

Dexion HI280 - Page 77

Dexion HI280
87 pages
Print Icon
To Next Page IconTo Next Page
To Next Page IconTo Next Page
To Previous Page IconTo Previous Page
To Previous Page IconTo Previous Page
Loading...
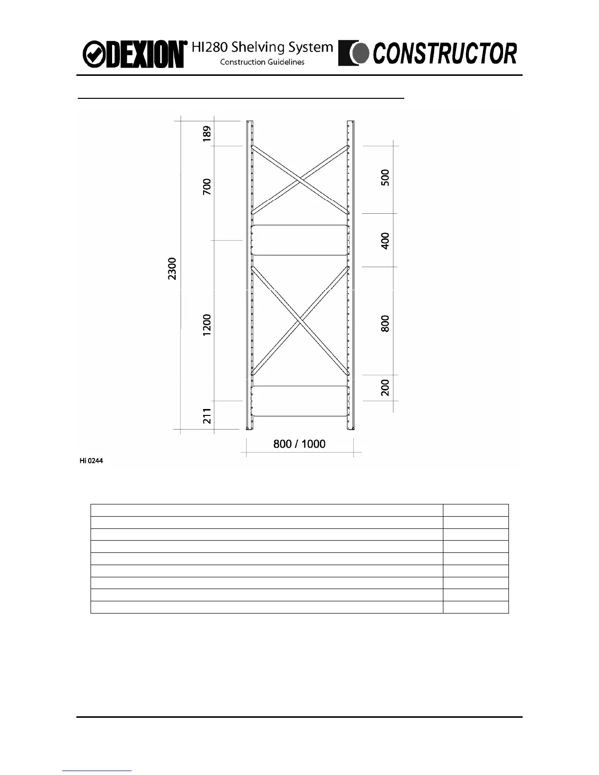
2300mm MULTI-TIER FRAME (Braced + Heavy duty riveted battens).
Component take-off Quantity
Upright 2
Baseplate 2
Upright to baseplate fixing (when required) 2
Heavy duty batten (rivet holes) 2
Frame brace for a 500mm high bracing panel 2
Frame brace for an 800mm high bracing panel 2
Rivet 4.8 x 7mm 20
Issue: June 2005 Section E – Frame Assembly Schedule Page E.42