EasyManua.ls Logo

DSC PC1832 - Hardware Installation

DSC PC1832
72 pages
Print Icon
To Next Page IconTo Next Page
To Next Page IconTo Next Page
To Previous Page IconTo Previous Page
To Previous Page IconTo Previous Page
Loading...
61
Hardware Installation
Begin the installation by mounting the cabinet in a dry protected area with access to unswitched AC power. Install Hardware in the sequence
indicated below. Do NOT apply power until installation is complete.
NOTE: All wiring entry points are designated by arrows. All circuits are classified UL power limited except for the battery leads. Mini-
mum 1/4” (6.4mm) separation must be maintained at all points between power limited and non-power limited wiring and connections.
1. Keybus Wiring
The 4-wire Keybus (red, black, yellow and green) is the communication connection between the control panel and all modules.
The 4 Keybus terminals of all modules must be connected to the 4 KEYBUS terminals of the main control panel.
The following rules must be followed when wiring the Keybus:
Minimum 22 AWG wire, maximum 18 AWG (2-wire twisted pre-
ferred
•Do NOT use shielded wire
Modules can be home run, connected in series or can be T-
tapped provided that the maximum wire distance from the control
panel to any module does not exceed 1,000 feet (305m)
No more than 3,000 feet (915m) of wire can be used in total
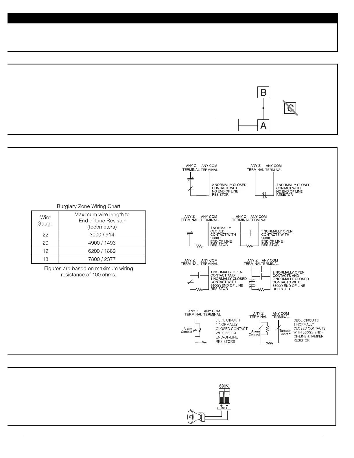
2. Zone Wiring
Zones can be wired for Normally Open, Normally Closed Contacts
with Single-end-of-line (SEOL) resistors or Double End-of-Line
(DEOL) resistors. Observe the following guidelines
For UL Listed Installations use SEOL or DEOL only.
Minimum 22 AWG wire, maximum 18 AWG
•Do NOT use shielded wire
Wire run resistance shall not exceed 100
Ω, refer to the chart
below:
Section [001-004] Selects Zone Definition
Section [013] Opt [1] Selects Normally Closed or EOL resistors
Section [013] Opt [2] Selects Single EOL or Double EOL resis-
tors.
Zone Status
Loop Resistance
- 0Ω (shorted wire/loop)
- 5600Ω (contact closed)
- infinite (broken wire, open)
- 11,200Ω (contact open)
Loop Status
Fault
Secure
Tamper
Violated
3. Bell Wiring
These terminals supply 700mA of current at 12VDC for commercial
installations and 11.1-12.6 V
DC for residential installations (e.g.DSC
SD-15 WULF). To comply with NFPA 72 Temporal Three Pattern
requirements:
Program Section [013] Opt [8] ON.
The Bell output is supervised and power limited. If unused, connect a
1000Ω resistor across Bell+ and Bell- to prevent the panel from dis-
playing a trouble. See [,][2].
NOTE: Bell output is current lim-
ited by 2A PTC
NOTE: Steady, Pulsed and Tem-
poral Three Pattern alarms are
supported.
CONTROL
PA NEL
150’ (46m)
150’ (46m)
500’ (152m)
500’ (152m)
Normally Closed Loops - Do NOT use for UL Installations
Single End-of-Line Resistor Wiring
Double End-of-Line Resistor Wiring
OBSERVE
POLARITY
BELL/SIREN
700mA (max.)

Table of Contents

Other manuals for DSC PC1832

Related product manuals