EasyManua.ls Logo

Eaton 9155 UPS - Figure 8. 2-High UPS Cabinet Center of Gravity

Eaton 9155 UPS
98 pages
Print Icon
To Next Page IconTo Next Page
To Next Page IconTo Next Page
To Previous Page IconTo Previous Page
To Previous Page IconTo Previous Page
Loading...
20 Eaton 9155 UPS (8–15 kVA) User’s Guide 164201553—Rev H0
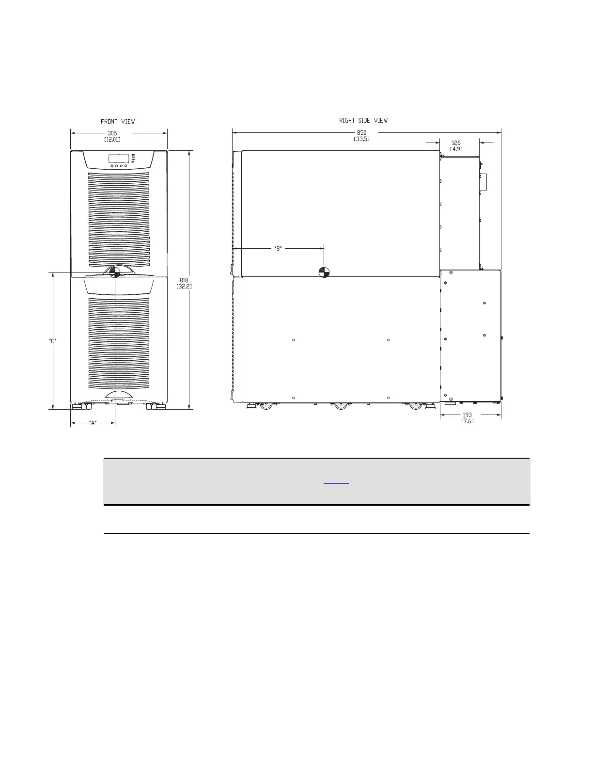
Figure 8. 2-High UPS Cabinet Center of Gravity
Dimensions are in millimeters [inches]
Weight and Center of Gravity
Dimensions mm [in]
See Figure 8.
Weight
kg [lb]
A B C
Eaton 9155 8-15 kVA UPS 2-
High
81 [3.2] 452 [17.8] 406 [16.0] 169 [373]
UPS Installation Plan and Unpacking

Table of Contents

Related product manuals