EasyManua.ls Logo

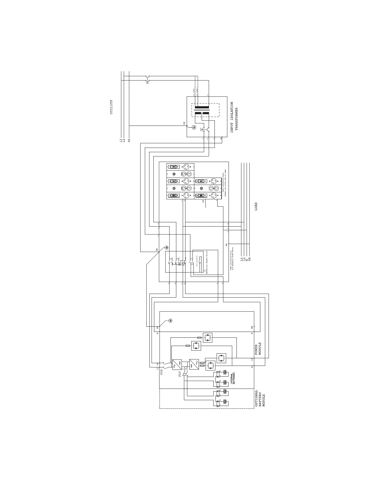
Eaton 9155 UPS - Figure 40. UPS with Input Isolation Transformer and MBM;PDM Wiring Diagram

Eaton 9155 UPS
98 pages
Print Icon
To Next Page IconTo Next Page
To Next Page IconTo Next Page
To Previous Page IconTo Previous Page
To Previous Page IconTo Previous Page
Loading...
Eaton 9155 UPS (8–15 kVA) User’s Guide 164201553—Rev H0 55
Figure 40. UPS with Input Isolation Transformer and MBM/PDM Wiring Diagram
2 1
4 3
12 11
10 9
7 8
5 6
14
16
13
15
2 1
UPS Wiring Diagrams and Schematics

Table of Contents

Related product manuals