EasyManua.ls Logo

Electrolux Side-By-Side Refrigerator - Step 1; Step 2; Step 3; Step 4

Electrolux Side-By-Side Refrigerator
137 pages
Print Icon
To Next Page IconTo Next Page
To Next Page IconTo Next Page
To Previous Page IconTo Previous Page
To Previous Page IconTo Previous Page
Loading...
96
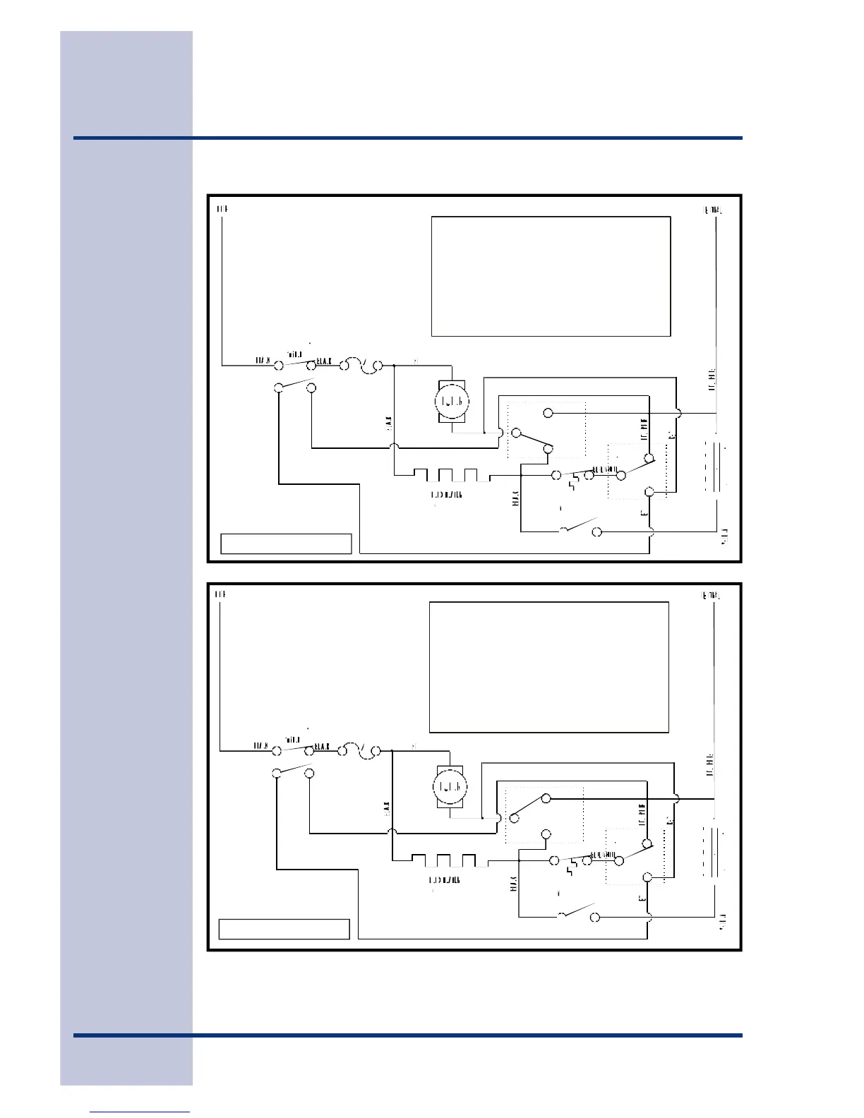
Section F - Ice Maker
Ice Maker - Electric 2
NC
C
NC
C
NO
NO
· Ice Maker connected to electricity.
· Mold temperature below 15° F
·
· Motor starting.
· Heater starting to heat.
· Control Arm in the down position.
· ON/OFF switch in the ON position.
· Shut-Off Switch closed C to NO.
· Hold Switch closed C to NC.
· Water Fill Switch open.
Thermostat closes.
.
Ice Maker - Electric 3
NC
C
NC
C
NO
NO
· Ice Maker connected to electricity.
· Mold temperature below 15° F
· Motor starting to rotate
· Power on heater.
· Thermostat closed.
· Control Arm in the down position.
· ON/OFF switch in the ON position.
· Shut-Off Switch closed C to NO.
· Hold Switch closed C to NO.
· Water Fill Switch open.
.
.

Table of Contents

Other manuals for Electrolux Side-By-Side Refrigerator

Related product manuals