EasyManua.ls Logo

Endress+Hauser Cerabar M - Page 98

Endress+Hauser Cerabar M
234 pages
Print Icon
To Next Page IconTo Next Page
To Next Page IconTo Next Page
To Previous Page IconTo Previous Page
To Previous Page IconTo Previous Page
Loading...
Commissioning with an operating menu (onsite display/FieldCare) Cerabar M, Deltabar M, Deltapilot M
98 Endress+Hauser
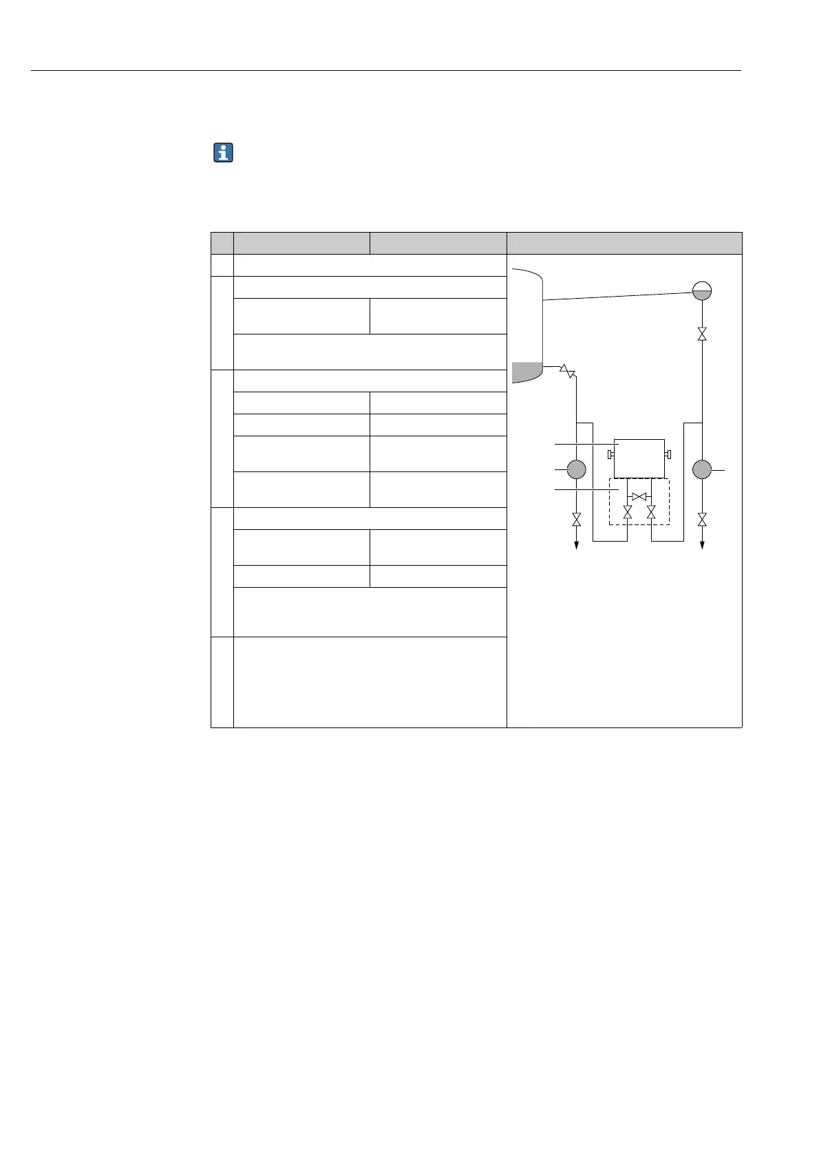
Closed container with superimposed steam
Before calibrating the device, the impulse piping must be cleaned and filled with medium.
See the following table.
Valves Meaning Installation
1 Fill container to a level above the lower tap.
A0030040
Closed container with superimposed steam
I Deltabar M
II Three-valve manifold
III Separator
1, 5 Drain valves
2, 4 Inlet valves
3 Equalizing valve
6, 7 Vent valves on Deltabar M
A, B Shut-off valves
2 Fill measuring system with medium.
Open A and B. Open shut-off valves.
Fill the negative impulse piping to the level of the
condensate trap.
3Vent device.
Open 2 and 4. Introduce medium.
Close 4. Close low-pressure side.
Open 3. Balance positive and low-
pressure side.
Open 6 and 7 briefly, then
close them again.
Fill device completely with
medium and remove air.
4 Set measuring point in operation.
Close 3. Shut off high-pressure side
from low-pressure side.
Open 4. Connect low-pressure side.
Now
3, 6 and 7 are closed.
2, 4, A and B are open.
5 Carry out calibration according to one of the following
methods:
"In pressure" - with reference pressure ( ä 99)
"In pressure" - without reference pressure ( ä 101)
"In height" - with reference pressure ( ä 103)
"In height" - without reference pressure ( ä 105)
A
II
III
III
P2
+
P1
6
7
3
24
I
15
+
B

Table of Contents

Related product manuals