EasyManua.ls Logo

Fire-Lite ECC-50 - Addressing External Data Bus Devices

Fire-Lite ECC-50
112 pages
Print Icon
To Next Page IconTo Next Page
To Next Page IconTo Next Page
To Previous Page IconTo Previous Page
To Previous Page IconTo Previous Page
Loading...
Emergency Command Center Manual — P/N LS10001-000FL-E:D 9/3/2014 55
Addressing External Data Bus Devices Installation
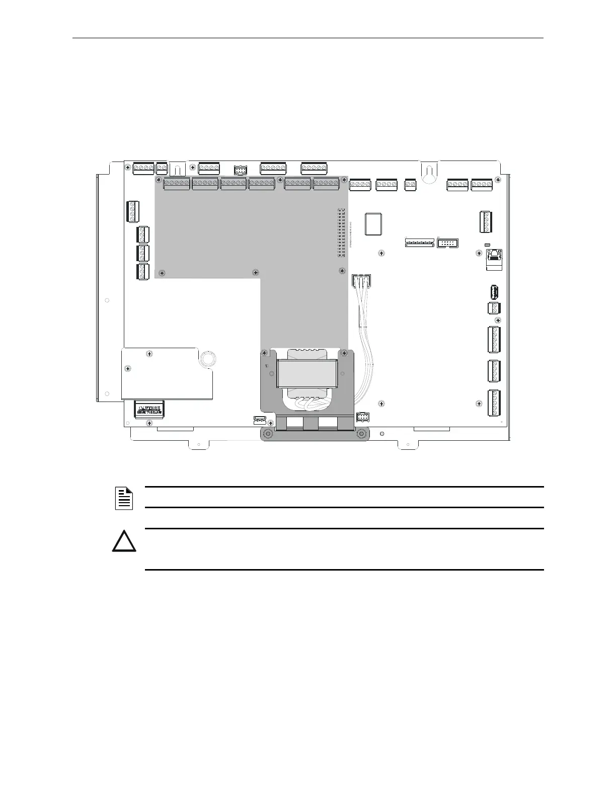
2.13.3 70.7 V
RMS
Transformer (ECC-XRM-70V)
The 70.7 V
RMS
Transformer can be used to convert the integral 25 V
RMS
amplifier for installations
where 70.7 V
RMS
speakers already exist or are to be installed. Speaker wiring continues to be
supervised during standby, alarm and while background music is playing when transformer is
installed. The transformer comes pre-installed onto a bracket for mounting to the chassis. Installa-
tion onto the chassis depends on what other option modules are installed. See the ECC-XRM-70V
Installation Document. Refer to the drawing below.
When installing the ECC-XRM-70V, be sure to:
carefully remove the factory-installed jumper plug from connector J12 on the main control
board.
set SW5 on the ECC-50/100 main control board to 70V operation.
2.14 Addressing External Data Bus Devices
The table below defines an address map for the external data bus devices which include the
ECC-LOC, ECC-RPU, ECC-RM, ECC-50DA, and ECC-125DA. Dipswitches are used on each of
these devices to set the bus address in order to properly communicate with the ECC-50/100 panel.
Any combination of up to eight (8) remote consoles (ECC-LOC, ECC-RPU, and ECC-RM) can be
Figure 2.43 70.7 V
RMS
Transformer Installation
ECC-CE6
e
c
c
x
f
m
r
c
e
6
.
w
m
f
NOTE: For 70.7V
RMS
operation with the optional amplifier, use model ECC-50W-70V.
!
CAUTION: DISCONNECT POWER
BEFORE INSTALLING ANY MODULES, MAKE CERTAIN ALL POWER (AC AND DC) HAS BEEN
REMOVED.

Table of Contents

Related product manuals