EasyManua.ls Logo

FLENDER ARPEX - Condition on Delivery; Type BVB

FLENDER ARPEX
64 pages
Print Icon
To Next Page IconTo Next Page
To Next Page IconTo Next Page
To Previous Page IconTo Previous Page
To Previous Page IconTo Previous Page
Loading...
22
ARPEX 8706 en
Operating instructions 10/2017
5.5 Condition on delivery
5.5.1 Type BVB
Y
Y
Detail "Y"
45
1
1
2
3
2
*)
B
V
B
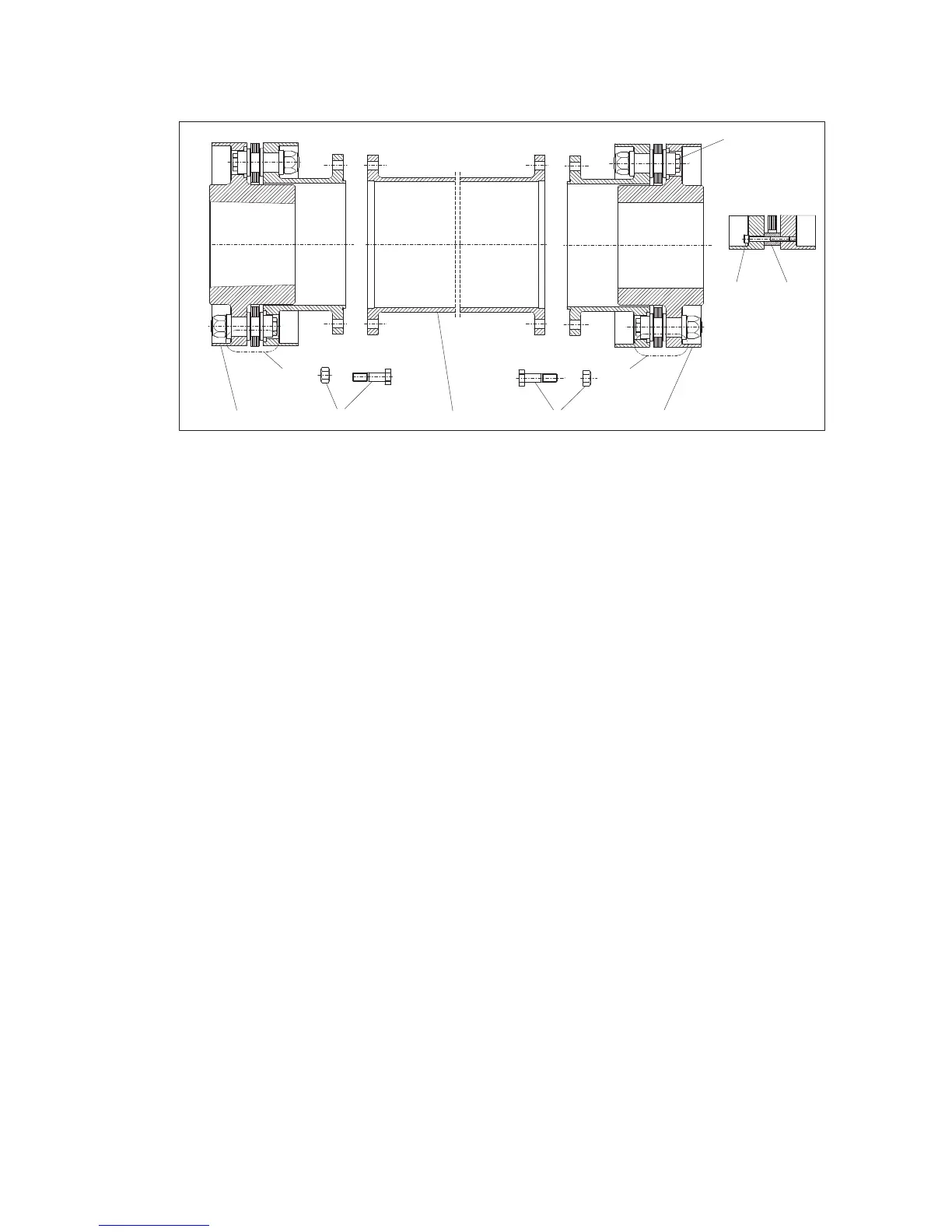
Fig. 13: Type BVB
1 "B" module 2 Screw connection of flange
3 "V"-spacer (intermediate unit) 4 Cheese-head bolt
5 Distance bushes "Y" Fastening
*
)
The plate packs must not be demounted or retightened!
The plate packs have been secured for the transport with special fastenings (spacer bushes and
cheesehead screws; see detail "Y" in figure 13).
The screw connections of the flanges (see figure 13) are delivered in separate packing units for each
coupling. The packing unit may contain additional spare screw connections.
Depending on the coupling version, optionally shims may be delivered, which are used for compensating
the shaft distance "DBSE" (DBSE = distance between shaft ends). The procedure is described in item 6.6.

Table of Contents

Related product manuals