EasyManua.ls Logo

Fronius FlexTrack 45 - General

Fronius FlexTrack 45
47 pages
Print Icon
To Next Page IconTo Next Page
To Next Page IconTo Next Page
To Previous Page IconTo Previous Page
To Previous Page IconTo Previous Page
Loading...
© FRONIUS 2013 8
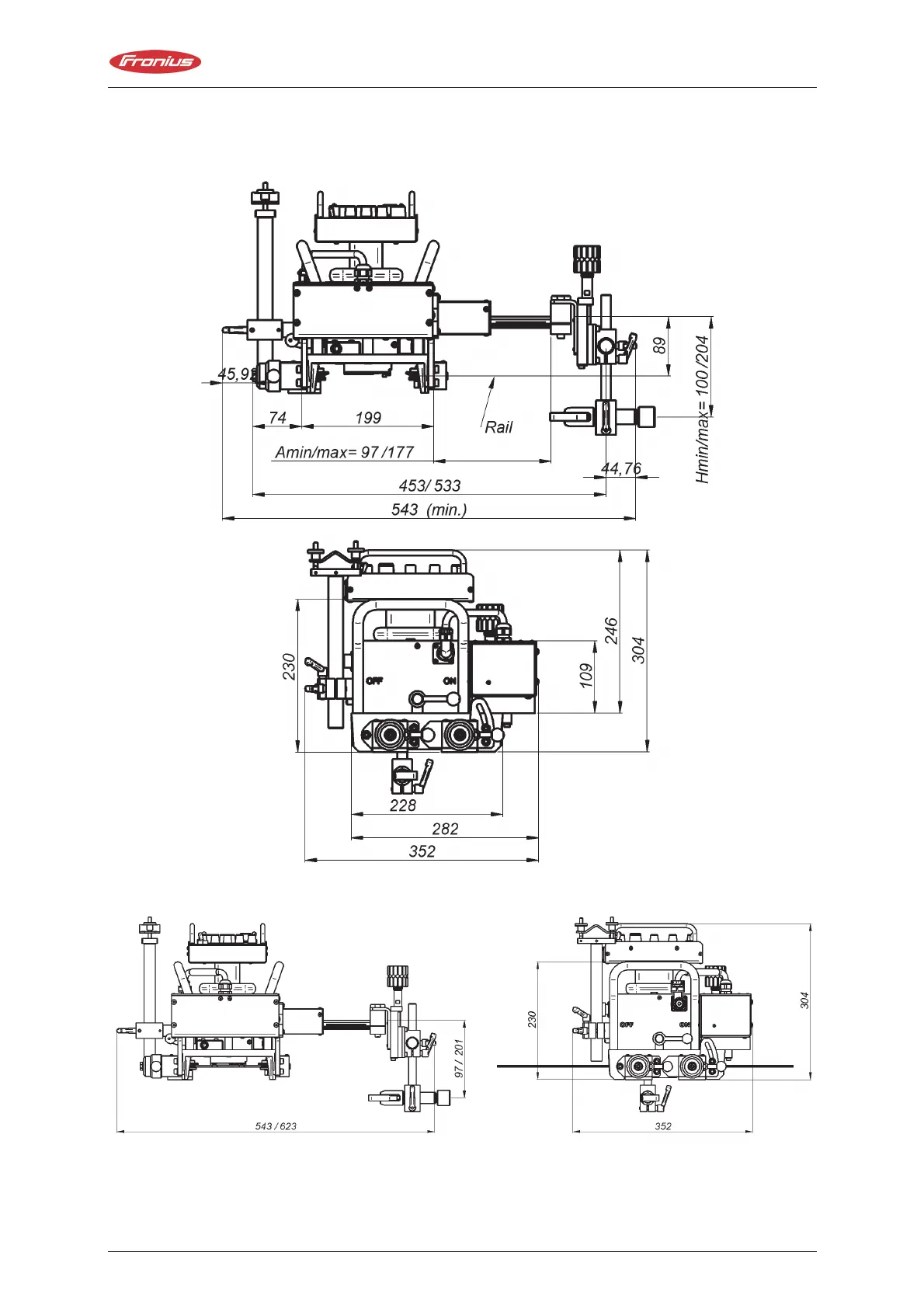
5. Dimensions of carriage with oscillation
All measurements in mm.
Carriage on a flexible track

Other manuals for Fronius FlexTrack 45

Related product manuals