EasyManua.ls Logo

Garmin MX20 - MX20 Detailed Operation and Features

Garmin MX20
90 pages
Print Icon
To Next Page IconTo Next Page
To Next Page IconTo Next Page
To Previous Page IconTo Previous Page
To Previous Page IconTo Previous Page
Loading...
Installation
MX20 Installation Manual 560-1025-09 Rev E 19
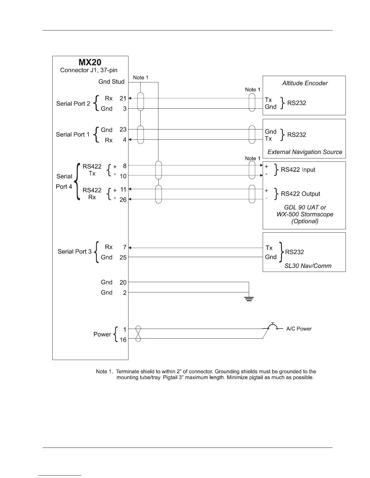
Figure 2-13. Sample System Wiring Diagram with WX500 or GDL 90 UAT
(No Internal GPS Version)

Table of Contents