EasyManua.ls Logo

Ge Est QS4 - Component Descriptions

Ge Est QS4
138 pages
Print Icon
To Next Page IconTo Next Page
To Next Page IconTo Next Page
To Previous Page IconTo Previous Page
To Previous Page IconTo Previous Page
Loading...
Product description
QS4 Technical Reference Manual 1.3
Component descriptions
1 2 3
6A
5
6B
7 84
9
10
J5
13
JP1
J2
J7
J8
JP1 CONFIGURATION
PIN 1 & 2 = MODEM PWR
PIN 2 & 3 = RTS
J6
14 13 111215
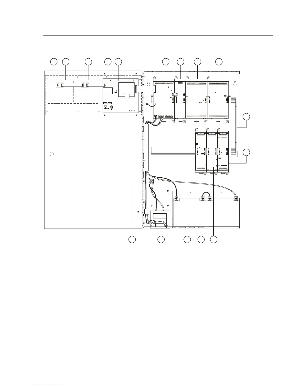
1. Cabinet enclosure: Houses the panel
electronics and standby batteries.
2. SL30–1 LED/Switch Card: Provides thirty
circuits for point or zone annunciation. Each
circuit has two LEDs for annunciating alarm,
supervisory, and trouble signals, and a button
numbered from 31 to 60.
3. SL30 LED/Switch Card: Same as SL30–1
except the buttons are numbered 1–30.
4. CPU/Display: Provides operator access to
system messages, status information, and
programming menus, and executes system
responses based on the panel programming.
5. PS6 Power Supply Card: Provides primary dc
power to the panel electronics and external
circuits. The PS6 also provides common alarm,
supervisory and trouble relays for remote station
supervision.
Technical Manuals Online! - http://www.tech-man.com

Table of Contents