EasyManua.ls Logo

Ge Est QS4 - How to Assemble the Panel

Ge Est QS4
138 pages
Print Icon
To Next Page IconTo Next Page
To Next Page IconTo Next Page
To Previous Page IconTo Previous Page
To Previous Page IconTo Previous Page
Loading...
Installation
2.6 QS4 Technical Reference Manual
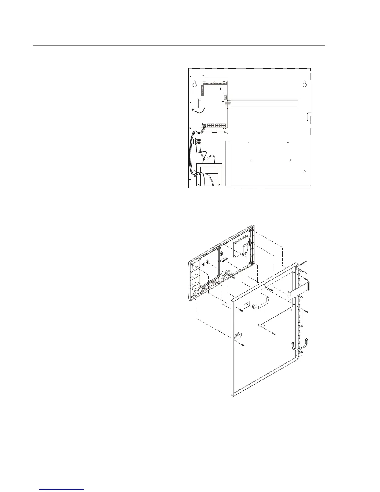
How to assemble the panel
Circuit card instructions
1. Lock the PS6 onto the DIN rail and configure
jumpers.
2. Attach the ground wire to the cabinet. Tighten
the lock nut firmly to ensure a good
mechanical and electrical connection.
3. Plug the transformer into the PS6.
4. Install remaining option cards according to
their respective installation sheets.
Use a QS–Cable12 to connect option cards on
the top and bottom DIN rails in a 12-option
cabinet.
Door mounting instructions
1. Bolt the door to the cabinet back box.
2. Attach one end of the ground strap to the door
and the other to the back box.
3. Screw the CPU/Display unit to the cabinet
door.
4. Plug one end of the ribbon cable into the
CPU/Display and the other end into the PS6.
5. Screw the key switch ground wire and the
CPU cover to the cabinet door.
*Actual cabinet door not shown
Technical Manuals Online! - http://www.tech-man.com

Table of Contents