EasyManua.ls Logo

Ge Est QS4 - Coded Alarm Signaling

Ge Est QS4
138 pages
Print Icon
To Next Page IconTo Next Page
To Next Page IconTo Next Page
To Previous Page IconTo Previous Page
To Previous Page IconTo Previous Page
Loading...
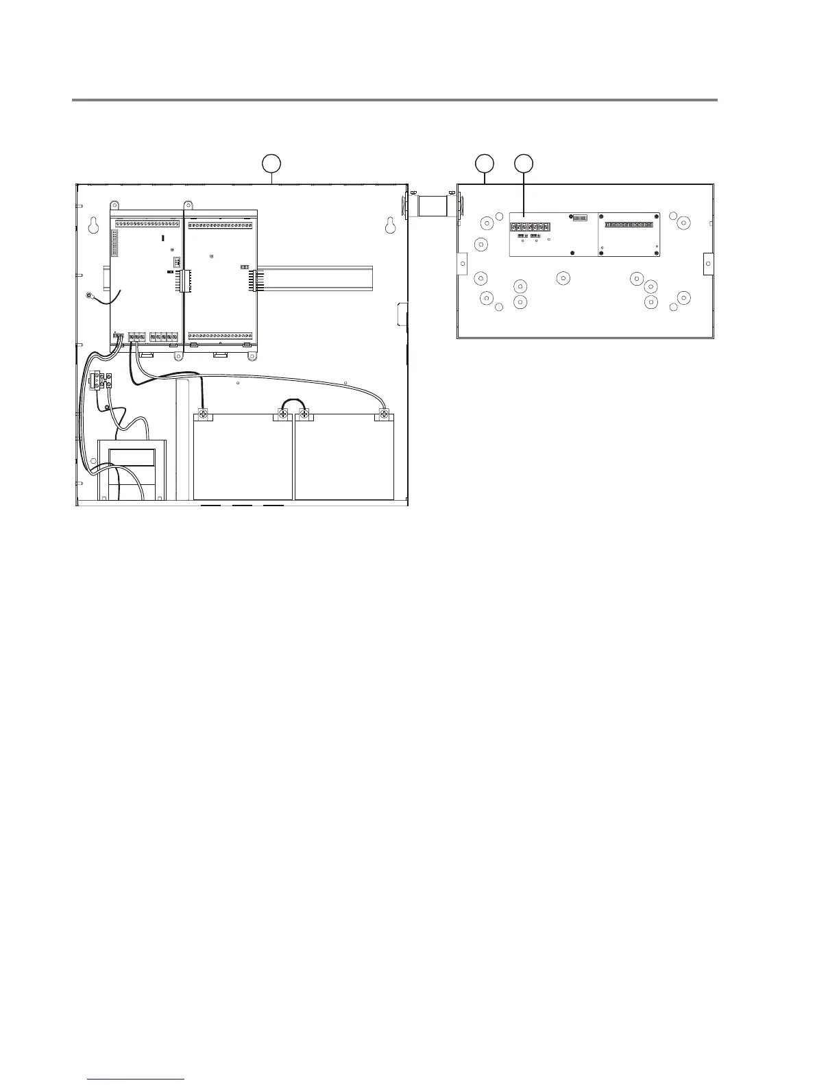
Standard applications
5.8 QS4 Technical Reference Manual
Coded alarm signaling
1 2 3
1. FACP: Fire alarm control panel with a CPU,
PS6, ZB16–4, and standby batteries.
2. MFC–A Accessory Enclosure: Used for
mounting the remote fire alarm equipment.
3. CDR–3 Bell Coder: Provides coded alarm
signals for 24 Vdc notification appliance circuits
and one of three evacuation signals (temporal, 60
bpm, and 90 bpm).
Note: CDR–3 must have firmware version greater
than 2.0.
Notes
Place the MFC–A and the FACP in the same
room and connect using a section of conduit no
greater than 20 ft in length. Run all wiring
between cabinets through the conduit.
Set SW–6 on CDR–3 to ON. Refer to the CDR–
3 installation sheet for programming
information.
Install a 10 k EOLR across TB2–1 and TB2–
2, and TB2–11 and TB2–12 on the CDR–3.
Set JP2 on the PS6 for ACC PWR
If the system uses a NAC circuit on an SLIC to
output the coded signal, program the NAC
circuit signal rate as Steady.
If the system uses the NAC 1 circuit on an SLIC
to output the coded signal to audible notification
appliances, set JP1 and JP2 on the SLIC to
EXT.
Figure 5-1: Typical equipment layout, coded alarm signaling application
Technical Manuals Online! - http://www.tech-man.com

Table of Contents