EasyManua.ls Logo

Ge Est QS4 - Remote Station Protective Signaling System

Ge Est QS4
138 pages
Print Icon
To Next Page IconTo Next Page
To Next Page IconTo Next Page
To Previous Page IconTo Previous Page
To Previous Page IconTo Previous Page
Loading...
Standard applications
5.10 QS4 Technical Reference Manual
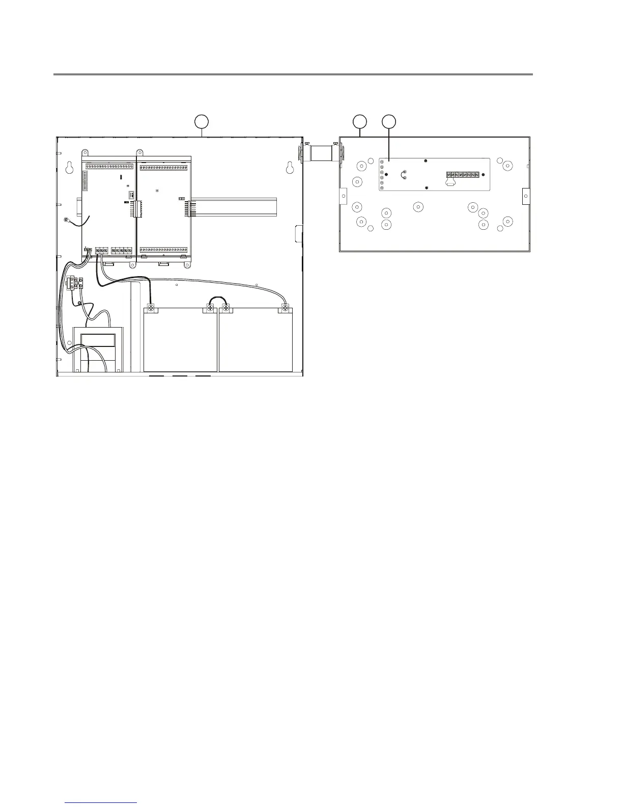
Remote station protective signaling system
1 2 3
1. FACP: Fire alarm control panel with a CPU,
PS6, ZB16–4, and standby batteries.
2. MFC–A Accessory Enclosure: Used for
mounting the remote fire alarm equipment.
3. RPM Reverse Polarity Module: Provides three
independent reverse polarity signals (alarm,
supervisory, trouble) for transmitting system status
to a remote location.
Notes
Place the MFC–A and the FACP in the same
room and connect using a section of conduit no
greater than 20 ft in length. Run all wiring
between cabinets through the conduit.
Set JP2 on the PS6 for ACC PWR.
Install a 3.9 K EOLR across TB1–1 and TB1–
2 on the RPM.
Figure 5-4: Typical equipment layout, Remote station protective signaling application
Technical Manuals Online! - http://www.tech-man.com

Table of Contents